1 / 6
$435,000
Original: $415,000
Active
PALMWAY DRIVE
SANFORD, FL 32773 — FLORA HEIGHTS
4 Beds
2 Baths
1,805 sqft
0.28 acres
Built 2026
2-Car Garage
About This Property
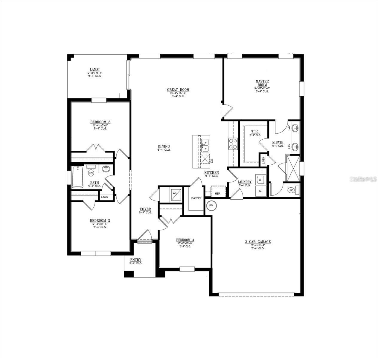
Pre-Construction. To be built. Under Construction – ESTIMATED COMPLETION October 4,2026 Skip the wait and secure this brand-new, modern masterpiece at Palmway Drive. This stunning 4-bedroom, 2-bathroom residence offers the perfect blend of luxury and functional design with NO HOA. The heart of the home is an expansive 19x16 Great Room, ideal for entertaining and open to a chef-inspired kitchen featuring tall countertops and sleek, modern finishes. Enjoy high-end luxury vinyl flooring throughout the main living areas, complemented by custom tile work in the bathrooms. Relax on your private covered Lanai or utilize the 2-car garage for vehicles and storage. Built with modern energy efficiency and quality craftsmanship, this home is located just minutes from the historic Sanford Riverfront, 17-92, and the 417 for a seamless commute. Garage is 19.4 x 21.4 and the Lanai is 12.8 x 3512 Palmway Dr is under construction with an April 206 for completion. The second house is set to start construction soon !!!!
Property Details
Basics
- Property Type
- Residential
- Property Subtype
- Single Family Residence
- MLS Number
- O6377071
- Days on Market
- 103
- Year Built
- 2026
- Levels
- One
- Direction Faces
- East
- Occupant Type
- Vacant
Size & Structure
- Living Area
- 1,805 sqft
- Total Area
- 2,377 sqft
- Lot Size
- 0.28 acres
- Lot Sq Ft
- 12,482 sqft
- Bedrooms
- 4
- Full Baths
- 2
- Garage Spaces
- 2
- Stories
- 1
Interior
- Flooring
- Luxury Vinyl
- Appliances
- Dishwasher, Electric Water Heater, Microwave, Range
- Interior Features
- Ceiling Fans(s)
- Laundry
- Electric Dryer Hookup, Inside, Washer Hookup
- Windows
- Storm Window(s)
- Furnished
- Unfurnished
- A/C
- Central Air
- Heating
- Central, Electric
Exterior & Lot
- Exterior Features
- Lighting, Private Mailbox, Private Yard, Sliding Doors
- Construction
- Block, Stucco
- Roof
- Shingle
- Foundation
- Block
- Patio/Porch
- Patio
- Lot Features
- Cleared, City Limits, Level
Water & Pool
Community & HOA
- HOA
- No
- Community Features
- Street Lights
Utilities & Systems
- Water
- Public
- Sewer
- Septic Tank
- Utilities
- Electricity Connected, Public, Water Connected
- Cooling
- Central Air
- Heating
- Central, Electric
- Flood Zone
- x
- Parking
- Driveway, Garage Door Opener, Ground Level
Financial
- List Price
- $435,000
- Original Price
- $415,000
- Annual Taxes
- $580
- Tax Year
- 2025
- Listing Terms
- Cash, Conventional, FHA, VA Loan
- Special Conditions
- None
- Possession
- Close Of Escrow
Schools
- Elementary
- Pine Crest Elementary
- Middle School
- Millennium Middle
- High School
- Seminole High