1 / 34
$925,000
Active
9985 GOBAT ALLEY
ORLANDO, FL 32827 — LAUREATE PARK PH 1 PRCL N-2
5 Beds
4 Baths
3,044 sqft
0.14 acres
Built 2025
2-Car Garage
About This Property
Welcome to this custom, never-lived-in residence in the heart of Laureate Park, gracefully positioned on a premium corner lot overlooking a beautifully landscaped mew and walking path. Built in 2025, this home showcases refined coastal architecture, highlighted by stately stone columns and a charming covered front porch that create a warm yet elevated sense of arrival.
Inside, a sense of effortless elegance unfolds. Wide-plank luxury vinyl flooring, expansive windows, and a thoughtfully designed open-concept layout create a light-filled and inviting atmosphere. The kitchen is both refined and functional, featuring stone countertops, under-cabinet lighting, built-in stainless steel appliances, a designer vent hood, and a walk-in pantry—all seamlessly flowing into the dining and living areas, offering the ideal setting for both everyday living and effortless entertaining.
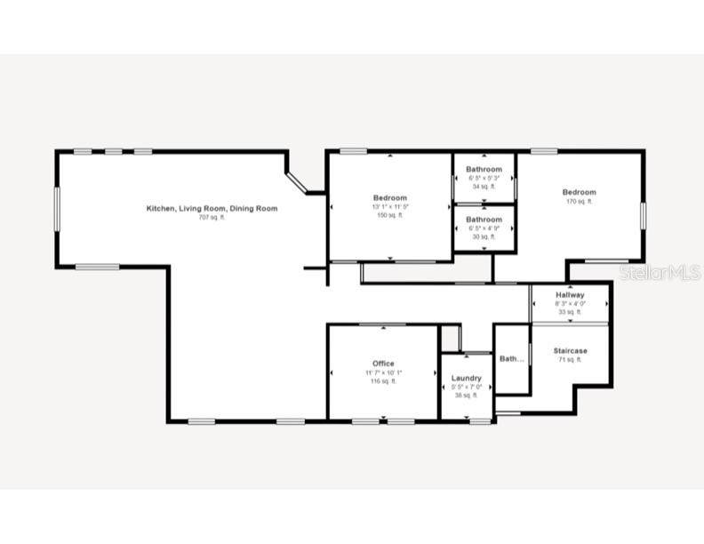
The main level is designed with flexibility and comfort in mind, offering two well appointed guest bedrooms connected by a Jack & Jill bath, a private office with French doors, and generous storage spaces and a convenient laundry room. Upstairs, a generous and versatile loft provides the perfect backdrop for a secondary living space, media room, or play area, adapting easily to your lifestyle.
The primary suite serves as a serene retreat, offering peaceful views, a spacious walk-in closet, and a spa-inspired bath complete with dual vanities and a glass-enclosed shower. Two additional bedrooms and a full bath complete the second floor, providing comfort and privacy for family and guests alike.
Step outside to enjoy the covered rear patio, leading to a detached 2.5-car garage with additional storage, a paver walkway, and low-maintenance landscaping designed for easy living.
Beyond the home, Laureate Park offers an unmatched vibe and lifestyle. Residents enjoy access to the Aquatic Center, resort-style pools, LP Fit fitness center, and over 44 miles of scenic trails. Ideally located in Lake Nona’s Medical City, you’re just minutes from the VA Hospital, Nemours, top dining, shopping, and entertainment, with convenient access to major highways, Orlando International Airport, the USTA National Campus, and Central Florida’s world-renowned attractions and beaches.
This residence presents a seamless blend of modern luxury, thoughtful design, comfort, and an exceptional community setting—an all in one opportunity in one of Orlando’s most sought-after neighborhoods.
Schedule your private showing and experience elevated living firsthand
Inside, a sense of effortless elegance unfolds. Wide-plank luxury vinyl flooring, expansive windows, and a thoughtfully designed open-concept layout create a light-filled and inviting atmosphere. The kitchen is both refined and functional, featuring stone countertops, under-cabinet lighting, built-in stainless steel appliances, a designer vent hood, and a walk-in pantry—all seamlessly flowing into the dining and living areas, offering the ideal setting for both everyday living and effortless entertaining.
The main level is designed with flexibility and comfort in mind, offering two well appointed guest bedrooms connected by a Jack & Jill bath, a private office with French doors, and generous storage spaces and a convenient laundry room. Upstairs, a generous and versatile loft provides the perfect backdrop for a secondary living space, media room, or play area, adapting easily to your lifestyle.
The primary suite serves as a serene retreat, offering peaceful views, a spacious walk-in closet, and a spa-inspired bath complete with dual vanities and a glass-enclosed shower. Two additional bedrooms and a full bath complete the second floor, providing comfort and privacy for family and guests alike.
Step outside to enjoy the covered rear patio, leading to a detached 2.5-car garage with additional storage, a paver walkway, and low-maintenance landscaping designed for easy living.
Beyond the home, Laureate Park offers an unmatched vibe and lifestyle. Residents enjoy access to the Aquatic Center, resort-style pools, LP Fit fitness center, and over 44 miles of scenic trails. Ideally located in Lake Nona’s Medical City, you’re just minutes from the VA Hospital, Nemours, top dining, shopping, and entertainment, with convenient access to major highways, Orlando International Airport, the USTA National Campus, and Central Florida’s world-renowned attractions and beaches.
This residence presents a seamless blend of modern luxury, thoughtful design, comfort, and an exceptional community setting—an all in one opportunity in one of Orlando’s most sought-after neighborhoods.
Schedule your private showing and experience elevated living firsthand
Property Details
Basics
- Property Type
- Residential
- Property Subtype
- Single Family Residence
- MLS Number
- O6399114
- Days on Market
- 8
- Year Built
- 2025
- Levels
- Two
- Additional Rooms
- Den/Library/Office,Loft
- Direction Faces
- East
- Occupant Type
- Vacant
Size & Structure
- Living Area
- 3,044 sqft
- Total Area
- 3,594 sqft
- Lot Size
- 0.14 acres
- Lot Sq Ft
- 6,060 sqft
- Bedrooms
- 5
- Full Baths
- 3
- Half Baths
- 1
- Garage Spaces
- 2
Interior
- Flooring
- Luxury Vinyl
- Appliances
- Built-In Oven, Cooktop, Dishwasher, Disposal, Electric Water Heater, Exhaust Fan, Microwave, Range Hood
- Interior Features
- Dry Bar, Eat-in Kitchen, High Ceilings, Kitchen/Family Room Combo, Open Floorplan, PrimaryBedroom Upstairs, Split Bedroom, Stone Counters, Thermostat, Walk-In Closet(s)
- Laundry
- Laundry Room
- Furnished
- Unfurnished
- A/C
- Central Air
- Heating
- Central, Electric
Exterior & Lot
- Exterior Features
- Lighting, Rain Gutters, Sidewalk, Sliding Doors
- Construction
- Block, Concrete, Stone, Stucco
- Roof
- Shingle
- Foundation
- Slab
- Patio/Porch
- Covered, Front Porch, Rear Porch
- Lot Features
- Corner Lot, Greenbelt, Landscaped
Water & Pool
Community & HOA
- HOA
- Yes
- HOA Fee
- $547/Quarterly
- Community Features
- Association Recreation - Owned, Community Mailbox, Deed Restrictions, Dog Park, Fitness Center, Golf Carts OK, Irrigation-Reclaimed Water, Park, Playground, Pool, Restaurant, Sidewalks
- Pets Allowed
- Breed Restrictions
- CDD
- Yes
- Security
- Security System
Utilities & Systems
- Water
- Public
- Sewer
- Public Sewer
- Utilities
- Public
- Cooling
- Central Air
- Heating
- Central, Electric
- Flood Zone
- x
- Parking
- Driveway, Garage Door Opener, Garage Faces Rear, Oversized
Financial
- List Price
- $925,000
- Annual Taxes
- $4,110
- Tax Year
- 2025
- Listing Terms
- Cash, Conventional
- Special Conditions
- None
Schools
- Elementary
- Laureate Park Elementary
- Middle School
- Luminary Middle
- High School
- Lake Nona High