1 / 73
$960,000
Original: $1,100,000
Active
790 S LAKE SYBELIA DRIVE
MAITLAND, FL 32751 — ACREAGE & UNREC
3 Beds
3 Baths
2,021 sqft
0.66 acres
Built 1958
About This Property
One or more photo(s) has been virtually staged. Price Improvement! A must See rare opportunity to own a private 0.66-acre Estate Homesite in Maitland with deeded Private Lake Sybelia access. Renovate, expand or build new!
790 S Lake Sybelia Drive offers a unique combination of land, privacy, and lake rights in one of Maitland’s most desirable communities. Set on a secluded, no-HOA .66 acre's of land, the property includes 12 feet of lake frontage extending approximately 268 feet into Lake Sybelia, providing true and usable access.
Private lake access you can actually use — without the $2M price tag.
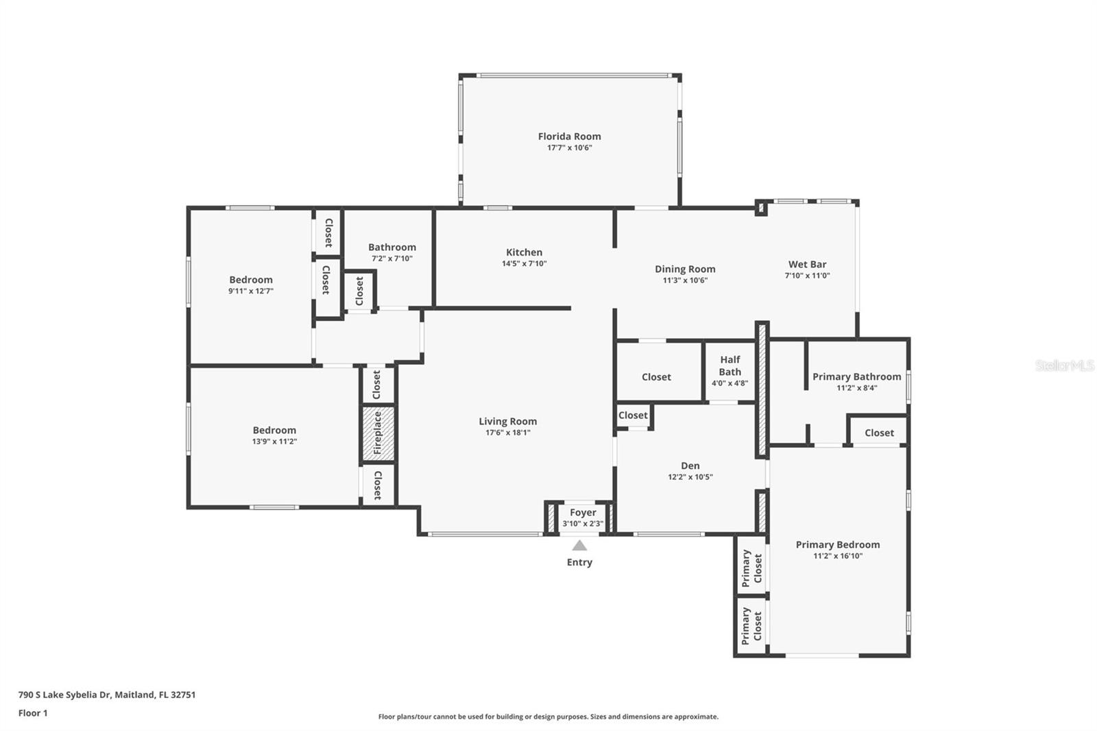
The updated home features 3 bedrooms and 2.5 bathrooms, a warm living room with a wood-burning fireplace, a panoramic window seat, and a spacious Florida room. Move in and enjoy as-is, or take advantage of the property’s full potential.
This property is ideal for expansion, a second-story addition, pool, guest house, or a custom new build, offering flexibility rarely found in Maitland.
The 0.66-acre lot is fully fenced with mature landscaping and provides ample space for outdoor living, entertaining, storing your RV or Boat. Opportunities combining large land for privacy and Lake Sybelia access are increasingly rare.
Recent updates include: Roof (2019), AC (2023), insulation (2025), and updated electrical and plumbing.
Ideally located near Lake Sybelia Park, the Iconic Enzian Theater, Maitland Art & History Center, Lake Lily Park, and just minutes to Winter Park and Downtown Orlando.
Enjoy paddleboarding at sunrise or relaxing in your private backyard retreat — this property delivers a rare blend of space, privacy, and lake access in the heart of Maitland.
790 S Lake Sybelia Drive offers a unique combination of land, privacy, and lake rights in one of Maitland’s most desirable communities. Set on a secluded, no-HOA .66 acre's of land, the property includes 12 feet of lake frontage extending approximately 268 feet into Lake Sybelia, providing true and usable access.
Private lake access you can actually use — without the $2M price tag.
The updated home features 3 bedrooms and 2.5 bathrooms, a warm living room with a wood-burning fireplace, a panoramic window seat, and a spacious Florida room. Move in and enjoy as-is, or take advantage of the property’s full potential.
This property is ideal for expansion, a second-story addition, pool, guest house, or a custom new build, offering flexibility rarely found in Maitland.
The 0.66-acre lot is fully fenced with mature landscaping and provides ample space for outdoor living, entertaining, storing your RV or Boat. Opportunities combining large land for privacy and Lake Sybelia access are increasingly rare.
Recent updates include: Roof (2019), AC (2023), insulation (2025), and updated electrical and plumbing.
Ideally located near Lake Sybelia Park, the Iconic Enzian Theater, Maitland Art & History Center, Lake Lily Park, and just minutes to Winter Park and Downtown Orlando.
Enjoy paddleboarding at sunrise or relaxing in your private backyard retreat — this property delivers a rare blend of space, privacy, and lake access in the heart of Maitland.
Property Details
Basics
- Property Type
- Residential
- Property Subtype
- Single Family Residence
- MLS Number
- G5108209
- Days on Market
- 81
- Year Built
- 1958
- Levels
- One
- Architectural Style
- Ranch
- Additional Rooms
- Attic,Bonus Room,Florida Room,Formal Dining Room Separate,Great Room,Inside Utility
- Direction Faces
- North
- Occupant Type
- Owner
Size & Structure
- Living Area
- 2,021 sqft
- Total Area
- 2,180 sqft
- Lot Size
- 0.66 acres
- Lot Sq Ft
- 28,552 sqft
- Bedrooms
- 3
- Full Baths
- 2
- Half Baths
- 1
Interior
- Flooring
- Ceramic Tile, Laminate, Wood
- Appliances
- Bar Fridge, Dishwasher, Dryer, Electric Water Heater, Ice Maker, Range, Range Hood, Refrigerator, Washer
- Interior Features
- Built-in Features, Ceiling Fans(s), Split Bedroom, Wet Bar
- Laundry
- Inside
- Windows
- Skylight(s)
- Fireplace
- Yes — Living Room, Wood Burning
- Furnished
- Unfurnished
- A/C
- Central Air, Mini-Split Unit(s), Wall/Window Unit(s)
- Heating
- Central, Electric
Exterior & Lot
- Exterior Features
- French Doors, Lighting, Rain Gutters
- Construction
- Block, Frame
- Roof
- Shingle
- Foundation
- Slab
- Patio/Porch
- Enclosed, Patio
- Other Structures
- Shed(s)
- Fencing
- Fenced
- Lot Features
- Flag Lot, City Limits, Level, Oversized Lot, Paved
Water & Pool
- Waterfront
- Yes — Lake Front
- Water Body
- LAKE SYBELIA
Community & HOA
- HOA
- No
- Community Features
- Deed Restrictions, Street Lights
- Pets Allowed
- Yes
- Homestead
- Yes
- Security
- Closed Circuit Camera(s)
Utilities & Systems
- Water
- Public
- Sewer
- Public Sewer
- Utilities
- BB/HS Internet Available, Cable Available, Electricity Connected, Public
- Cooling
- Central Air, Mini-Split Unit(s), Wall/Window Unit(s)
- Heating
- Central, Electric
- Flood Zone
- AE
- Parking
- None
Financial
- List Price
- $960,000
- Original Price
- $1,100,000
- Annual Taxes
- $6,881
- Tax Year
- 2025
- Listing Terms
- Cash, Conventional, FHA, VA Loan
- Special Conditions
- None
- Possession
- Close Of Escrow
Schools
- Elementary
- Lake Sybelia Elem
- Middle School
- Maitland Middle
- High School
- Edgewater High