1 / 24
$329,900
Original: $343,000
Active
6906 COLONY OAKS LANE
ORLANDO, FL 32818 — COLONY
3 Beds
2 Baths
1,420 sqft
0.27 acres
Built 1986
2-Car Garage
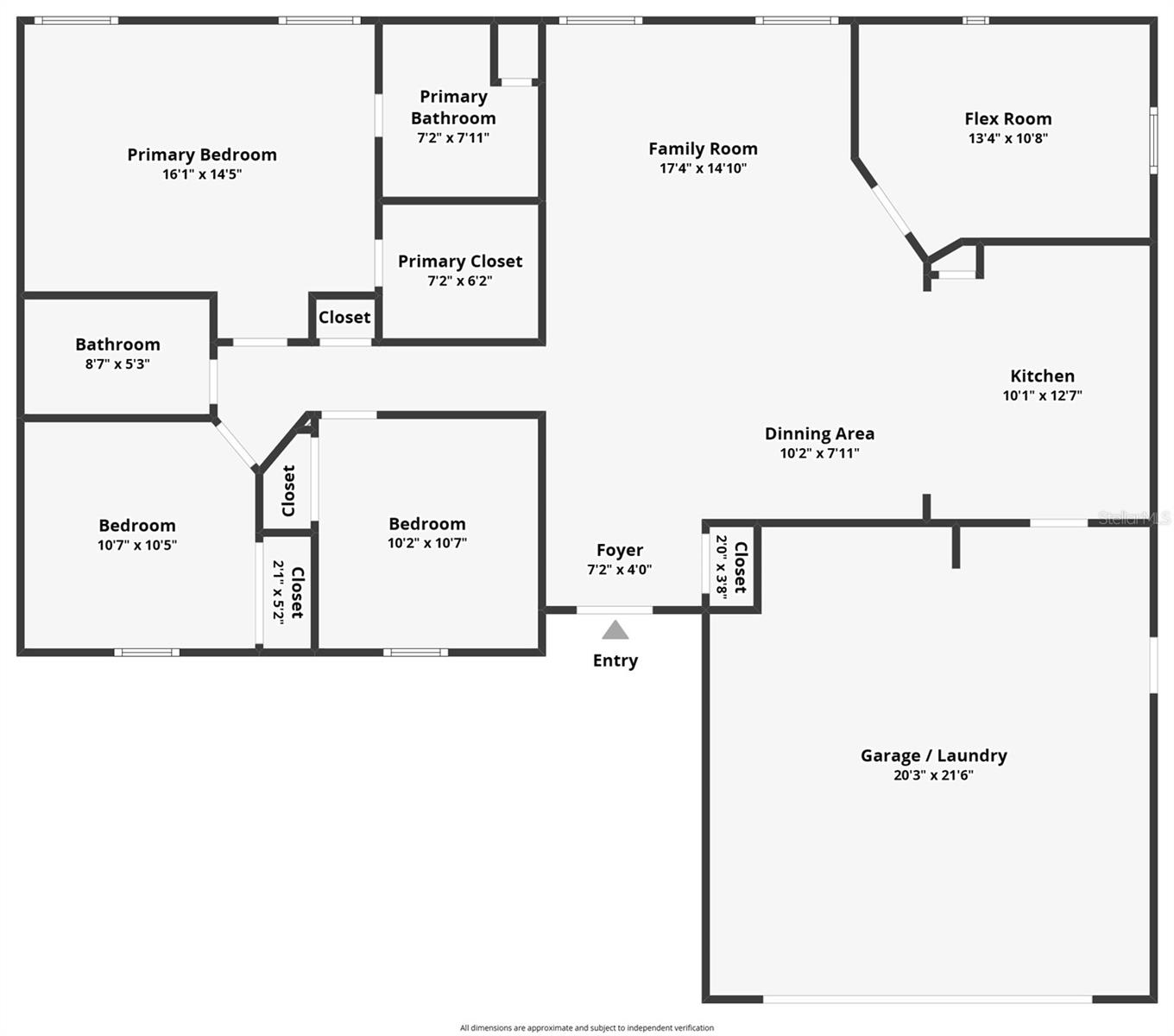
About This Property
PRICED UNDER APPRAISED VALUE! Welcome to 6906 Colony Oaks Lane—a 3-bedroom, 2-bathroom single-family home situated on an OVERSIZED lot. Step inside to discover an open-concept layout that flows seamlessly through the spacious living room, modernized kitchen, dining room and versatile bonus room. The bonus room could be used as an office, bedroom or any purpose that fits your lifestyle. The kitchen has updated cabinetry, granite countertops, stainless steel appliances, and a skylight that provides natural light. The bedrooms offer ample space and privacy. Both bathrooms have been refreshed and have granite countertops. The spacious backyard is fully fenced and has plenty of room for a pool. Roof 2016, AC 2016, BRAND NEW Water Heater 2025. NEWER WINDOWS.
Situated just minutes from major highways, shopping and restaurants. Don’t miss your chance to make this your new home! Call and schedule your showing today.
Situated just minutes from major highways, shopping and restaurants. Don’t miss your chance to make this your new home! Call and schedule your showing today.
Property Details
Basics
- Property Type
- Residential
- Property Subtype
- Single Family Residence
- MLS Number
- O6301494
- Days on Market
- 247
- Year Built
- 1986
- Levels
- One
- Direction Faces
- North
- Occupant Type
- Vacant
Size & Structure
- Living Area
- 1,420 sqft
- Total Area
- 1,931 sqft
- Lot Size
- 0.27 acres
- Lot Sq Ft
- 11,645 sqft
- Bedrooms
- 3
- Full Baths
- 2
- Garage Spaces
- 2
Interior
- Flooring
- Laminate, Tile
- Appliances
- Dishwasher, Disposal, Microwave, Range, Refrigerator
- Interior Features
- Ceiling Fans(s), Living Room/Dining Room Combo, Open Floorplan, Solid Surface Counters
- Laundry
- In Garage
- Windows
- Skylight(s)
- A/C
- Central Air
- Heating
- Central
Exterior & Lot
- Exterior Features
- Private Mailbox
- Construction
- Block, Frame
- Roof
- Shingle
- Foundation
- Slab
Water & Pool
Community & HOA
- HOA
- No
- Homestead
- Yes
Utilities & Systems
- Water
- Public
- Sewer
- Septic Tank
- Utilities
- Electricity Connected
- Cooling
- Central Air
- Heating
- Central
- Flood Zone
- X
Financial
- List Price
- $329,900
- Original Price
- $343,000
- Annual Taxes
- $2,093
- Tax Year
- 2024
- Listing Terms
- Cash, Conventional, FHA, VA Loan
- Special Conditions
- None
Schools
- Elementary
- Lake Gem Elem
- Middle School
- Meadowbrook Middle
- High School
- Evans High