1 / 42
$600,000
Original: $610,000
Active
6905 GREEN SWAMP ROAD
CLERMONT, FL 34714 — POSTAL COLONY 34-23-25
3 Beds
2 Baths
1,624 sqft
5.00 acres
Built 1982
2-Car Garage
About This Property
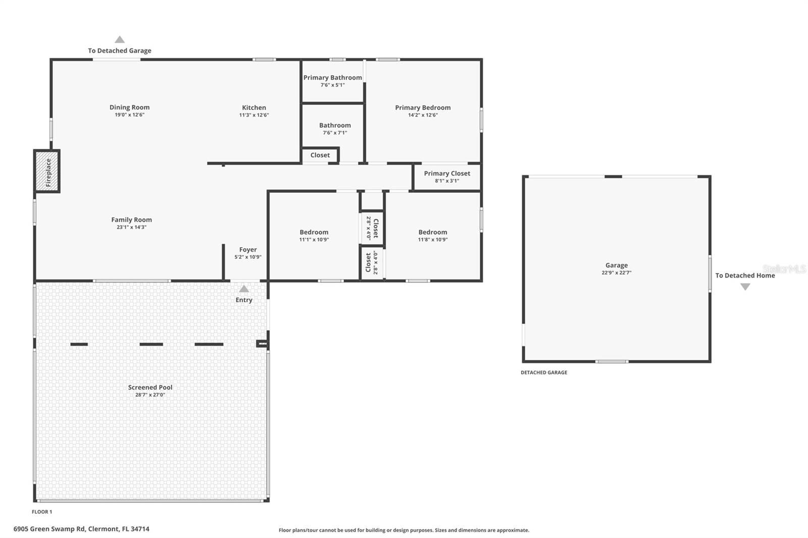
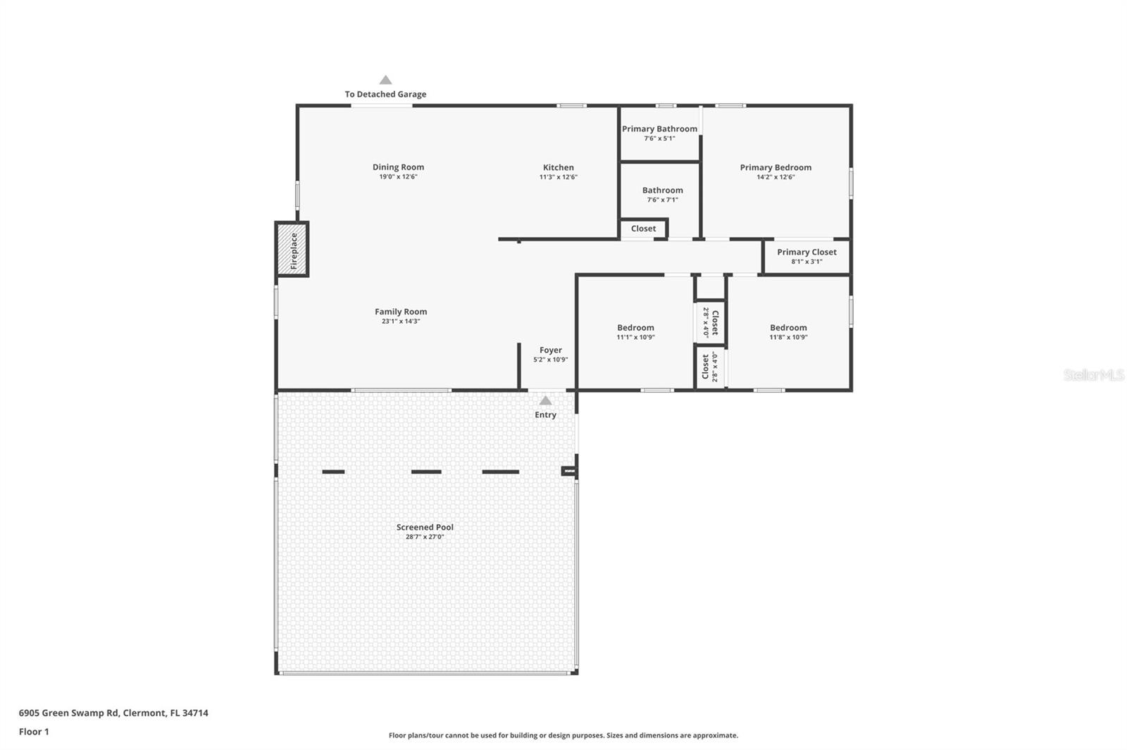
You’re about to discover a rare opportunity to own a well-positioned home on five high-and-dry acres in Clermont. Tucked back off the road, this 3 BR, 2 BA property offers privacy, flexibility, and room to live the lifestyle you’ve been dreaming about… yes, you can bring your cows. The home is thoughtfully placed toward the east side of the property, preserving wide-open acreage ideal for fencing, grazing, crops, or future barns and corrals. There’s ample space to maneuver trucks, trailers, and equipment, while strategically placed rear trees provide natural privacy and shade without limiting usability. Inside, the living spaces were ahead of their time. The expansive great room features a striking stone wood-burning fireplace, and the generously sized kitchen offers excellent renovation potential. With only a few simple divider walls removed, you can easily create a modern open-concept kitchen, dining, and living area with a large island. For a buyer who’s even moderately handy, this layout allows for an easier, more affordable renovation than most older homes. All bedrooms are located toward the back of the home for added privacy, with additional flexibility to reconfigure or expand the primary suite if desired. Step outside to a screened-in pool, perfect for unwinding at the end of the day. A detached 576-square-foot two-car garage is connected by a breezeway that could easily be converted into a covered outdoor living space, while the garage itself offers great potential as a mancave, workshop, or farm shop. This wide 330’ x 640’ lot is a rare find and feels larger than five acres, as many similar-sized parcels are long and narrow. The home sits approximately 325 feet off the paved road, offering privacy while still being just off CR-561 and about 15 minutes from shopping, dining, and all that Clermont has to offer. For buyers seeking additional land or a future build site, the same owner is also selling a nearby 10-acre high-and-dry vacant parcel (MLS #G5107562), located approximately 550 yards down the road—mostly cleared with a dozen trees and well-suited for building, livestock, or agricultural use. Properties with this combination of wide, usable acreage, smart placement, and renovation-friendly layouts are becoming harder to find. Hurry and schedule your appointment to see this property before it’s gone. *Aerial photo property lines are an estimate and to be verified by buyer.
Property Details
Basics
- Property Type
- Residential
- Property Subtype
- Single Family Residence
- MLS Number
- G5106113
- Days on Market
- 28
- Year Built
- 1982
- Levels
- One
- Architectural Style
- Ranch
- Additional Rooms
- Great Room
- Direction Faces
- North
- Occupant Type
- Vacant
Size & Structure
- Living Area
- 1,624 sqft
- Total Area
- 2,981 sqft
- Lot Size
- 5.00 acres
- Lot Sq Ft
- 217,800 sqft
- Bedrooms
- 3
- Full Baths
- 2
- Garage Spaces
- 2
Interior
- Flooring
- Carpet, Tile
- Appliances
- Dishwasher, Disposal, Range, Refrigerator
- Interior Features
- Kitchen/Family Room Combo, Primary Bedroom Main Floor, Vaulted Ceiling(s)
- Laundry
- In Garage
- Fireplace
- Yes — Family Room, Wood Burning
- Furnished
- Unfurnished
- A/C
- Central Air
- Heating
- Central
Exterior & Lot
- Exterior Features
- Sliding Doors
- Construction
- Block, Brick
- Roof
- Shingle
- Foundation
- Slab
- Patio/Porch
- Covered, Front Porch
- Lot Features
- Farm, In County, Pasture, Paved, Zoned for Horses
Water & Pool
- Pool
- Yes — Gunite, In Ground
Community & HOA
- HOA
- No
- Pets Allowed
- Yes
Utilities & Systems
- Water
- Well
- Sewer
- Septic Tank
- Utilities
- Cable Available, Electricity Connected
- Cooling
- Central Air
- Heating
- Central
- Flood Zone
- X
Financial
- List Price
- $600,000
- Original Price
- $610,000
- Annual Taxes
- $7,187
- Tax Year
- 2025
- Listing Terms
- Cash, Conventional, VA Loan
- Special Conditions
- None