1 / 6
$465,000
Active
680 DUNBAR AVENUE
WINTER GARDEN, FL 34787 — OVERSTREET CRATE
4 Beds
2 Baths
1,713 sqft
0.40 acres
Built 2026
2-Car Garage
About This Property
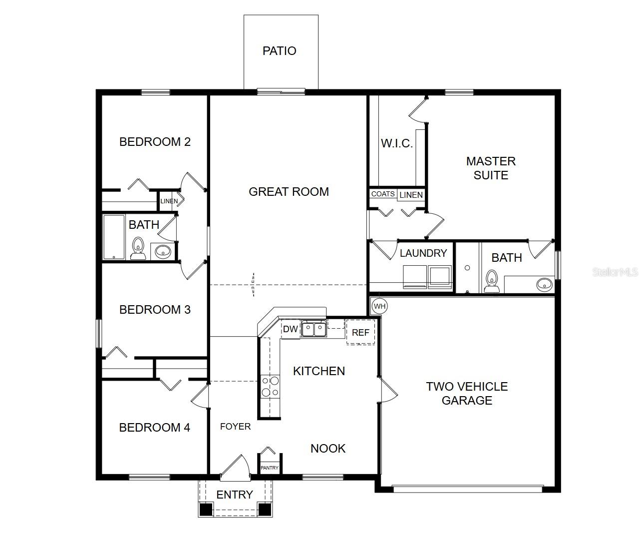
Pre-Construction. To be built. This is a pre-construction opportunity in partnership with Vazquez Family Builders. Final
floor plan, square footage, and sales price will be determined by the buyer based on
selected model and upgrades. Positioned on a desirable corner lot in the heart of Winter Garden, this pre-construction ranch-style home presents an exceptional opportunity to create your ideal living space. This home is planned for 1713 square feet of meticulously designed living space, featuring 4 spacious bedrooms, two full bathrooms, and an attached two-car garage. The open-concept layout will seamlessly connect the main living areas, creating an inviting environment for everyday life and entertaining. The absence of stairs makes this home highly accessible and a perfect "forever home or vacation property."
floor plan, square footage, and sales price will be determined by the buyer based on
selected model and upgrades. Positioned on a desirable corner lot in the heart of Winter Garden, this pre-construction ranch-style home presents an exceptional opportunity to create your ideal living space. This home is planned for 1713 square feet of meticulously designed living space, featuring 4 spacious bedrooms, two full bathrooms, and an attached two-car garage. The open-concept layout will seamlessly connect the main living areas, creating an inviting environment for everyday life and entertaining. The absence of stairs makes this home highly accessible and a perfect "forever home or vacation property."
Property Details
Basics
- Property Type
- Residential
- Property Subtype
- Single Family Residence
- MLS Number
- O6389210
- Days on Market
- 27
- Year Built
- 2026
- New Construction
- Yes
- Levels
- One
- Floor Number
- 1
- Direction Faces
- Northeast
- Occupant Type
- Vacant
Size & Structure
- Living Area
- 1,713 sqft
- Total Area
- 2,193 sqft
- Lot Size
- 0.40 acres
- Lot Sq Ft
- 16,884 sqft
- Bedrooms
- 4
- Full Baths
- 2
- Garage Spaces
- 2
- Stories
- 1
Interior
- Flooring
- Carpet, Ceramic Tile
- Appliances
- Electric Water Heater, Exhaust Fan
- Interior Features
- Eat-in Kitchen, High Ceilings, Kitchen/Family Room Combo, Open Floorplan
- Laundry
- Laundry Closet
- Furnished
- Unfurnished
- A/C
- Central Air
- Heating
- Central, Electric
Exterior & Lot
- Exterior Features
- Private Entrance, Sidewalk
- Construction
- Block, Stucco
- Roof
- Shingle
- Foundation
- Block
Water & Pool
Community & HOA
- HOA
- No
Utilities & Systems
- Water
- None
- Sewer
- Other
- Utilities
- Other, Sewer Available
- Cooling
- Central Air
- Heating
- Central, Electric
- Flood Zone
- x
Financial
- List Price
- $465,000
- Annual Taxes
- $847
- Tax Year
- 2025
- Listing Terms
- Cash, Conventional, FHA, VA Loan
- Special Conditions
- None
- Possession
- Close Of Escrow
Schools
- Elementary
- William Frangus Elem
- Middle School
- Lakeview Middle
- High School
- West Orange High