1 / 15
$603,885
Active
6741 YELLOW WARBLER BEND
ST CLOUD, FL 34773 — BAY LAKE FARMS AT ST CLOUD
5 Beds
5 Baths
3,120 sqft
0.14 acres
Built 2025
3-Car Garage
About This Property
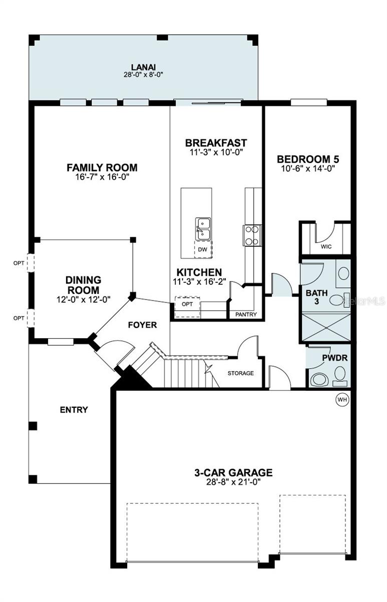
Under Construction. Welcome to 6741 Yellow Warbler Bend in Saint Cloud: a stunning new construction home built by M/I Homes. This thoughtfully designed home offers 3,120 square foot of well-planned living space, featuring 5 spacious bedrooms, 4.5 bathrooms, and an upstairs owner's bedroom retreat.
Step inside to discover an inviting open-concept living space that seamlessly connects the main gathering areas, creating a warm and functional environment for everyday living and entertaining. The quality of design is evident throughout, with carefully selected finishes and a floorplan that balances comfort with style.
This home includes the following:
- 3,120 square foot of living space
- 5 bedrooms and 4.5 bathrooms
- Open-concept main-living space
- A spacious loft
- An extended lanai
- 3-car garage
Every detail of this home reflects a commitment to quality design and purposeful construction. From the spacious layout to the well-appointed bathrooms, this home delivers the level of personalization and attention to detail that today's buyers are looking for.
This home is situated in a welcoming neighborhood with convenient proximity to parks, making it easy to enjoy outdoor recreation and green spaces. The surrounding area provides a friendly atmosphere where residents can take advantage of nearby trails, playgrounds, and natural scenery.
Step inside to discover an inviting open-concept living space that seamlessly connects the main gathering areas, creating a warm and functional environment for everyday living and entertaining. The quality of design is evident throughout, with carefully selected finishes and a floorplan that balances comfort with style.
This home includes the following:
- 3,120 square foot of living space
- 5 bedrooms and 4.5 bathrooms
- Open-concept main-living space
- A spacious loft
- An extended lanai
- 3-car garage
Every detail of this home reflects a commitment to quality design and purposeful construction. From the spacious layout to the well-appointed bathrooms, this home delivers the level of personalization and attention to detail that today's buyers are looking for.
This home is situated in a welcoming neighborhood with convenient proximity to parks, making it easy to enjoy outdoor recreation and green spaces. The surrounding area provides a friendly atmosphere where residents can take advantage of nearby trails, playgrounds, and natural scenery.
Property Details
Basics
- Property Type
- Residential
- Property Subtype
- Single Family Residence
- MLS Number
- O6399176
- Days on Market
- 35
- Year Built
- 2025
- New Construction
- Yes
- Levels
- Two
- Additional Rooms
- Formal Dining Room Separate,Loft
- Direction Faces
- Northeast
- Occupant Type
- Vacant
Size & Structure
- Living Area
- 3,120 sqft
- Total Area
- 3,120 sqft
- Lot Size
- 0.14 acres
- Lot Sq Ft
- 5,983 sqft
- Bedrooms
- 5
- Full Baths
- 4
- Half Baths
- 1
- Garage Spaces
- 3
Interior
- Flooring
- Carpet, Ceramic Tile
- Appliances
- Dishwasher, Disposal, Electric Water Heater, Microwave, Range
- Interior Features
- Crown Molding, Eat-in Kitchen, Open Floorplan, PrimaryBedroom Upstairs, Solid Surface Counters, Thermostat, Walk-In Closet(s)
- Laundry
- Inside
- Furnished
- Unfurnished
- A/C
- Central Air
- Heating
- Central
Exterior & Lot
- Exterior Features
- Sidewalk, Sliding Doors
- Construction
- Stucco, Vinyl Siding
- Roof
- Shingle
- Foundation
- Slab
- Patio/Porch
- Other
- Lot Features
- Landscaped, Sidewalk, Paved
- View
- Water
Water & Pool
Community & HOA
- HOA
- Yes
- HOA Fee
- $125/Monthly
- HOA Amenities
- Playground, Pool
- Community Features
- Community Mailbox, Park, Playground, Pool, Sidewalks
- Pets Allowed
- Yes
- Security
- Gated Community, Smoke Detector(s)
Utilities & Systems
- Water
- Public
- Sewer
- Public Sewer
- Utilities
- Cable Connected, Electricity Connected, Water Connected
- Cooling
- Central Air
- Heating
- Central
- Flood Zone
- X
- Parking
- Driveway, Garage Door Opener
Financial
- List Price
- $603,885
- Annual Taxes
- $970
- Tax Year
- 2025
- Listing Terms
- Cash, Conventional, FHA, USDA Loan, VA Loan
- Special Conditions
- None
Schools
- Elementary
- Harmony Community School (K-5)
- Middle School
- Harmony Middle
- High School
- Harmony High