1 / 48
$699,000
Original: $710,000
Active
6220 HEDGESPARROWS LANE
SANFORD, FL 32771 — BUCKINGHAM ESTATES PH 3 & 4
4 Beds
3 Baths
2,975 sqft
0.24 acres
Built 2005
2-Car Garage
About This Property
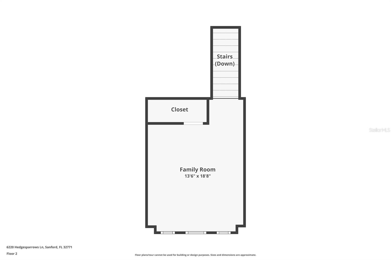
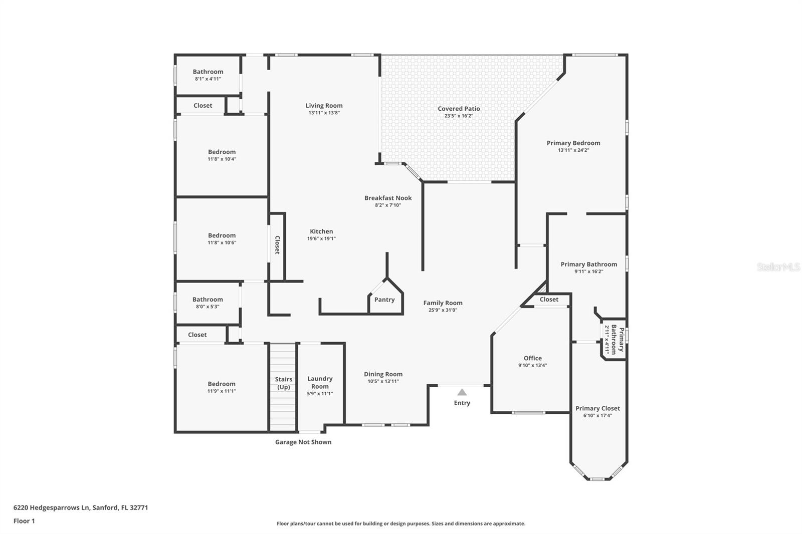
Motivated Seller! NEW ROOF 2026! NEW Flooring 2025, NEW Toilets 2025, (2)AC units, Refrigerator 2023! Discount if financed with our preferred lender. $5,000 seller concession for professional interior painting. Step into this beautifully maintained 4-bedroom, 3-bathroom single-family home, perfectly positioned on a desirable corner lot in one of Sanford’s most charming residential areas with a 24-hr guard at the gate. With new luxury vinyl plank flooring, flexible living spaces, and modern upgrades, this home offers the perfect balance of comfort, style, and convenience. The spacious living and dining areas flow seamlessly into the well-appointed kitchen, which features stainless steel appliances, granite countertops, and ample cabinet space, ideal for everyday living or hosting family and friends. The thoughtful spilt floor plan includes generously sized bedrooms and well-maintained bathrooms, along with an additional large office, creating a warm and welcoming environment. One of the standout features of this home is the bonus room above the garage. This versatile space can be used as a private guest suite, media room, home office, playroom, or hobby room, offering endless possibilities to fit your lifestyle. The corner lot adds extra privacy, curb appeal, and outdoor space, making it perfect for gardening, relaxing, or entertaining. Cross Seminole Trail runs right through this neighborhood, giving you access to miles of beautifully maintained space for biking, walking, or jogging. Buckingham Estates is minutes from amazing restaurant and shopping in Sanford AND in Lake Mary, each with a variety of community events to entertain and delight you. Conveniently, you'll also find easy access to the expressways, making it a quick drive to several beaches, or downtown Orlando and all of the amusement parks. This home combines modern comfort, flexible living, and the rich lifestyle the Heathrow area is known for. Move-in ready and full of character, this is an opportunity you will not want to miss.
Property Details
Basics
- Property Type
- Residential
- Property Subtype
- Single Family Residence
- MLS Number
- TB8485992
- Days on Market
- 73
- Year Built
- 2005
- Levels
- Two
- Direction Faces
- South
- Occupant Type
- Vacant
Size & Structure
- Living Area
- 2,975 sqft
- Total Area
- 3,688 sqft
- Lot Size
- 0.24 acres
- Lot Sq Ft
- 10,327 sqft
- Bedrooms
- 4
- Full Baths
- 3
- Garage Spaces
- 2
- Stories
- 2
Interior
- Flooring
- Laminate
- Appliances
- Dishwasher, Disposal, Dryer, Microwave, Range, Refrigerator, Washer
- Interior Features
- Cathedral Ceiling(s), Eat-in Kitchen, Open Floorplan, Primary Bedroom Main Floor, Solid Surface Counters, Walk-In Closet(s)
- Laundry
- Inside
- Furnished
- Unfurnished
- A/C
- Central Air
- Heating
- Central
Exterior & Lot
- Exterior Features
- Lighting, Private Mailbox, Sidewalk
- Construction
- Block, Stucco
- Roof
- Shingle
- Foundation
- Slab
Water & Pool
Community & HOA
- HOA
- Yes
- HOA Fee
- $585/Quarterly
- HOA Amenities
- Clubhouse, Gated, Playground, Pool, Trail(s)
- Community Features
- Deed Restrictions, Gated Community - Guard, Playground, Pool, Sidewalks
- Pets Allowed
- Cats OK, Dogs OK
Utilities & Systems
- Water
- Public
- Sewer
- Public Sewer
- Utilities
- BB/HS Internet Available, Cable Available, Electricity Available, Phone Available, Sewer Available, Water Available
- Cooling
- Central Air
- Heating
- Central
- Flood Zone
- X
Financial
- List Price
- $699,000
- Original Price
- $710,000
- Annual Taxes
- $7,256
- Tax Year
- 2024
- Listing Terms
- Cash, Conventional, FHA, VA Loan
- Special Conditions
- None