1 / 66
$599,999
Original: $649,900
Active
5460 BOUTIN LANE
ST CLOUD, FL 34772 — S L & I C
4 Beds
3 Baths
2,276 sqft
1.20 acres
Built 2004
2-Car Garage
About This Property
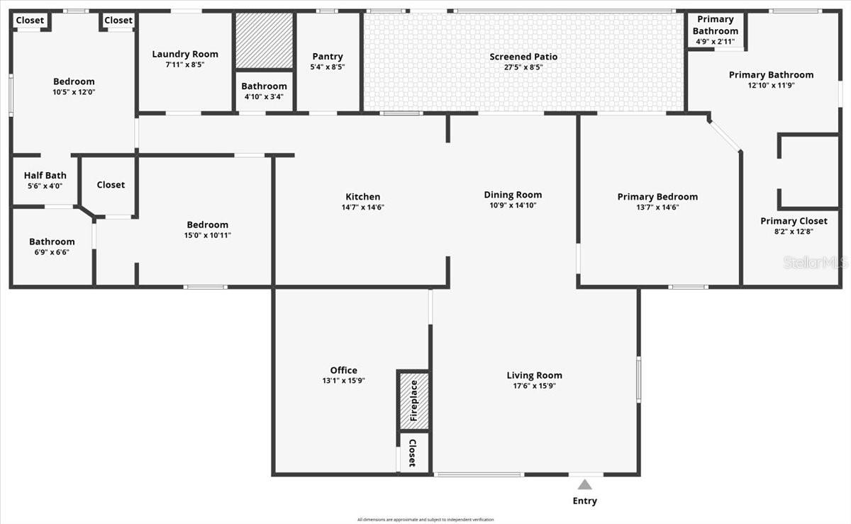
Welcome to your private retreat in the heart of Saint Cloud! This beautifully maintained 4-bedroom, 2 1.5 bath home sits on 1.2 acres of pristine land with with fenced electronic gate, offering the perfect balance of quiet country living with the convenience of nearby shopping, dining, and major commuter routes. This home boasts a 2 year old roof, and 3 year old HVAC system.
Step inside to find an inviting open floor plan featuring high ceilings, abundant natural light, and a spacious living area centered around a cozy fireplace. The chef-inspired kitchen offers generous counter space, prep sink, beverage cooler, beautiful cabinetry, and a seamless connection to the main living areas fully equipped with AV Sound System— ideal for entertaining.
The primary suite is a true sanctuary, complete with dual closets, a large bathroom with a jacuzzi garden tub, and a private outdoor shower for a relaxing, spa-like escape.
Outdoors, enjoy Florida living at its finest. The expansive yard offers unmatched privacy, offering custom touches throughout. You will find a screened in porch area, additional uncovered paved sitting area with paved fireplace, covered grill station, custom built Covered bar area with Live edge countertop-heaters-sound system & speakers, fire pit, above ground pool, barn, RV hookup and a detached garage that’s perfect for extra storage or hobby space.
Located just minutes from the Florida Turnpike, downtown Saint Cloud, schools, lakes, and parks, this home delivers comfort, convenience, and space. Make this your new sanctuary!
Step inside to find an inviting open floor plan featuring high ceilings, abundant natural light, and a spacious living area centered around a cozy fireplace. The chef-inspired kitchen offers generous counter space, prep sink, beverage cooler, beautiful cabinetry, and a seamless connection to the main living areas fully equipped with AV Sound System— ideal for entertaining.
The primary suite is a true sanctuary, complete with dual closets, a large bathroom with a jacuzzi garden tub, and a private outdoor shower for a relaxing, spa-like escape.
Outdoors, enjoy Florida living at its finest. The expansive yard offers unmatched privacy, offering custom touches throughout. You will find a screened in porch area, additional uncovered paved sitting area with paved fireplace, covered grill station, custom built Covered bar area with Live edge countertop-heaters-sound system & speakers, fire pit, above ground pool, barn, RV hookup and a detached garage that’s perfect for extra storage or hobby space.
Located just minutes from the Florida Turnpike, downtown Saint Cloud, schools, lakes, and parks, this home delivers comfort, convenience, and space. Make this your new sanctuary!
Property Details
Basics
- Property Type
- Residential
- Property Subtype
- Single Family Residence
- MLS Number
- O6361887
- Days on Market
- 128
- Year Built
- 2004
- Levels
- One
- Architectural Style
- Ranch
- Additional Rooms
- Den/Library/Office
- Direction Faces
- East
- Occupant Type
- Owner
Size & Structure
- Living Area
- 2,276 sqft
- Total Area
- 3,538 sqft
- Lot Size
- 1.20 acres
- Lot Sq Ft
- 52,446 sqft
- Bedrooms
- 4
- Full Baths
- 2
- Half Baths
- 1
- Garage Spaces
- 2
- Stories
- 1
Interior
- Flooring
- Carpet, Tile
- Appliances
- Bar Fridge, Built-In Oven, Dishwasher, Disposal, Exhaust Fan, Gas Water Heater, Range, Range Hood, Touchless Faucet, Water Filtration System
- Interior Features
- Ceiling Fans(s), High Ceilings, Living Room/Dining Room Combo, Open Floorplan, Primary Bedroom Main Floor, Solid Wood Cabinets, Thermostat, Walk-In Closet(s)
- Laundry
- Electric Dryer Hookup, Gas Dryer Hookup, Laundry Room
- Windows
- Double Pane Windows
- Fireplace
- Yes — Gas
- Furnished
- Unfurnished
- A/C
- Central Air
- Heating
- Natural Gas
Exterior & Lot
- Exterior Features
- Fire Pit, French Doors, Lighting, Outdoor Shower, Private Entrance, Private Mailbox, Private Yard, Rain Gutters, RV Hookup, Storage
- Construction
- Block, Metal Siding
- Roof
- Other
- Foundation
- Slab
- Patio/Porch
- Covered, Enclosed, Front Porch, Rear Porch, Screened
- Other Structures
- Barn(s), Other
- Fencing
- Fenced
- Lot Features
- Flood Insurance Required, FloodZone, Landscaped, Paved
- View
- Trees/Woods
Water & Pool
- Pool
- Yes — Above Ground
Community & HOA
- HOA
- No
- Homestead
- Yes
- Security
- Secured Garage/Parking, Security Gate, Security Lights, Smoke Detector(s)
Utilities & Systems
- Water
- Well
- Sewer
- Septic Tank
- Utilities
- Cable Available, Cable Connected, Electricity Available, Electricity Connected, Natural Gas Available, Natural Gas Connected, Phone Available, Public
- Cooling
- Central Air
- Heating
- Natural Gas
- Flood Zone
- AE
- Parking
- Driveway, Ground Level, Guest, RV Access/Parking
Financial
- List Price
- $599,999
- Original Price
- $649,900
- Annual Taxes
- $5,678
- Tax Year
- 2024
- Listing Terms
- Cash, Conventional, FHA, VA Loan
- Special Conditions
- None
- Possession
- Close Of Escrow
Schools
- Elementary
- Hickory Tree Elem
- Middle School
- Harmony Middle
- High School
- Harmony High