1 / 54
$495,000
Original: $499,000
Active
5208 DEER CREEK DRIVE
ORLANDO, FL 32821 — DEER CREEK VILLAGE SEC 05
3 Beds
2 Baths
1,540 sqft
0.20 acres
Built 1989
2-Car Garage
About This Property
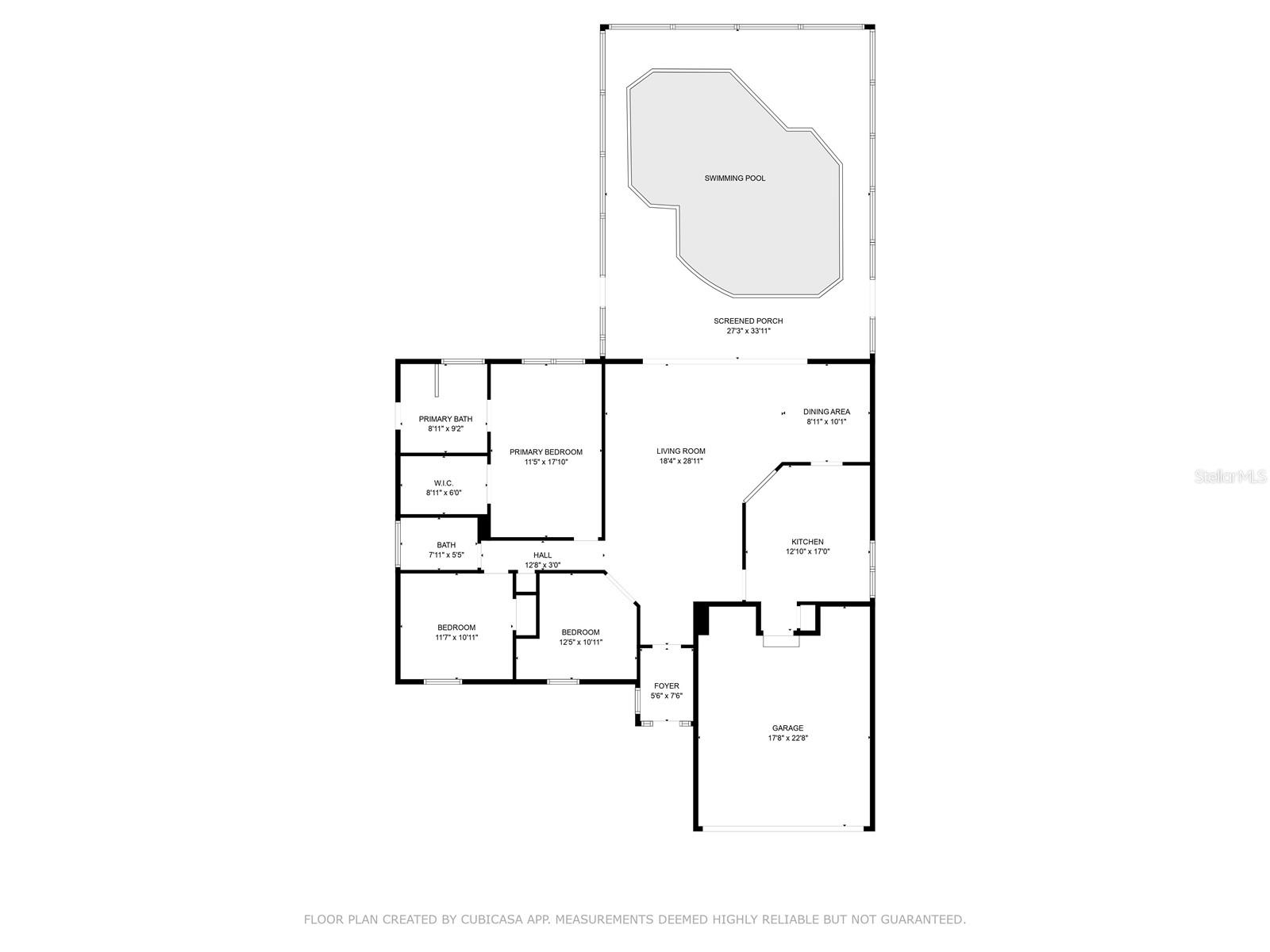
Welcome to this beautifully updated 3 bedroom, 2 bath single family home located in the desirable Deer Creek Village. This move in ready property features recently replaced flooring, fresh interior paint, and updated light fixtures, giving the home a modern and refreshed feel throughout. The roof is only 5 years old, offering added value and peace of mind for the new owner.
The spacious kitchen is a standout, offering plenty of room for cooking, entertaining, and gathering with family and friends. The open layout flows seamlessly into the main living areas, creating a comfortable and inviting atmosphere.
Step outside to what truly sets this home apart, a private pool overlooking an incredible water view. This is the highlight of the property, providing a peaceful and scenic backdrop perfect for relaxing mornings, entertaining guests, or enjoying Florida sunsets.
Conveniently located near major attractions, shopping, dining, and major highways, this home offers both comfort and an unbeatable location.
The spacious kitchen is a standout, offering plenty of room for cooking, entertaining, and gathering with family and friends. The open layout flows seamlessly into the main living areas, creating a comfortable and inviting atmosphere.
Step outside to what truly sets this home apart, a private pool overlooking an incredible water view. This is the highlight of the property, providing a peaceful and scenic backdrop perfect for relaxing mornings, entertaining guests, or enjoying Florida sunsets.
Conveniently located near major attractions, shopping, dining, and major highways, this home offers both comfort and an unbeatable location.
Property Details
Basics
- Property Type
- Residential
- Property Subtype
- Single Family Residence
- MLS Number
- S5148799
- Days on Market
- 13
- Year Built
- 1989
- Levels
- One
- Direction Faces
- Northwest
- Occupant Type
- Vacant
Size & Structure
- Living Area
- 1,540 sqft
- Total Area
- 2,028 sqft
- Lot Size
- 0.20 acres
- Lot Sq Ft
- 8,708 sqft
- Bedrooms
- 3
- Full Baths
- 2
- Garage Spaces
- 2
- Stories
- 1
Interior
- Flooring
- Laminate, Tile
- Appliances
- Dishwasher, Dryer, Microwave, Range Hood, Refrigerator, Washer
- Interior Features
- Ceiling Fans(s), Living Room/Dining Room Combo
- Laundry
- In Garage
- Furnished
- Unfurnished
- A/C
- Central Air
- Heating
- Central
Exterior & Lot
- Exterior Features
- Private Mailbox, Sidewalk
- Construction
- Block
- Roof
- Shingle
- Foundation
- Slab
Water & Pool
- Water View
- Lake
- Pool
- Yes — In Ground
Community & HOA
- HOA
- Yes
- HOA Fee
- $227/Semi-Annually
- Pets Allowed
- Yes
Utilities & Systems
- Water
- Public
- Sewer
- Public Sewer
- Utilities
- Public
- Cooling
- Central Air
- Heating
- Central
- Flood Zone
- X
Financial
- List Price
- $495,000
- Original Price
- $499,000
- Annual Taxes
- $2,508
- Tax Year
- 2025
- Special Conditions
- None