1 / 23
$325,990
Active
434 BERYL COVE
SANFORD, FL 32771 — EMERALD POINTE AT BERYL LANDING
3 Beds
3 Baths
1,699 sqft
0.04 acres
Built 2026
1-Car Garage
About This Property
Under Construction. Welcome home to Emerald Pointe at Beryl Landing - a new construction townhome community with an ideal location in the growing city of Sanford. Future planned community amenities will include a pool with cabana, dog park, children’s playground, and 1 Gig high speed internet – all with a low HOA and no CDD! Convenient to the Sanford Riverwalk with a waterfront trail and park, eateries, breweries, shopping, live entertainment, and more. And with a commute of less than 2 minutes to I-4 and 417, your affordable new townhome is well within reach. Hurry in – townhomes in this highly-anticipated community are already selling quickly!
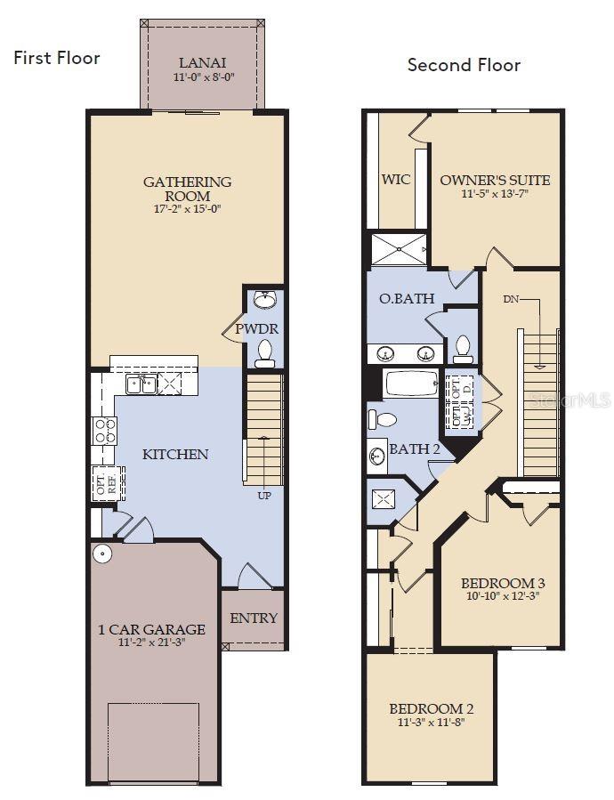
This gorgeous interior-unit Springdale two-story townhome has no direct rear neighbors, and features our CO2 exterior, Classic Fresh design package, 3 bedrooms, 2 full bathrooms, a powder room, a single-car garage, a covered lanai, washer, dryer, refrigerator and window blinds. The spacious first floor is ideal for entertaining, featuring a powder room, open concept gathering room, café and kitchen and a covered lanai. The kitchen is equipped with a pantry, bright white cabinetry, Blanco Maple quartz countertops and beautiful Perla tile flooring. After a long day, retreat upstairs to your private oasis. The Owner's Suite features a spacious walk-in closet and en suite bathroom with a double sink quartz-topped white vanity, a linen closet, private water closet and walk-in shower. Two additional bedrooms, the secondary bathroom and the laundry are also on the second floor, offering privacy and space for everyone. Professionally curated design selections for this popular Springdale townhome include a washer, dryer, refrigerator, blinds, upgraded cabinetry with quartz countertops, designer tile accents in the kitchen and showers, Boston Perla tile flooring in the living areas, bathrooms and laundry room, soft, stain-resistant carpet in the bedrooms and second floor living areas and so much more!
This gorgeous interior-unit Springdale two-story townhome has no direct rear neighbors, and features our CO2 exterior, Classic Fresh design package, 3 bedrooms, 2 full bathrooms, a powder room, a single-car garage, a covered lanai, washer, dryer, refrigerator and window blinds. The spacious first floor is ideal for entertaining, featuring a powder room, open concept gathering room, café and kitchen and a covered lanai. The kitchen is equipped with a pantry, bright white cabinetry, Blanco Maple quartz countertops and beautiful Perla tile flooring. After a long day, retreat upstairs to your private oasis. The Owner's Suite features a spacious walk-in closet and en suite bathroom with a double sink quartz-topped white vanity, a linen closet, private water closet and walk-in shower. Two additional bedrooms, the secondary bathroom and the laundry are also on the second floor, offering privacy and space for everyone. Professionally curated design selections for this popular Springdale townhome include a washer, dryer, refrigerator, blinds, upgraded cabinetry with quartz countertops, designer tile accents in the kitchen and showers, Boston Perla tile flooring in the living areas, bathrooms and laundry room, soft, stain-resistant carpet in the bedrooms and second floor living areas and so much more!
Property Details
Basics
- Property Type
- Residential
- Property Subtype
- Townhouse
- MLS Number
- O6381888
- Days on Market
- 46
- Year Built
- 2026
- New Construction
- Yes
- Levels
- Two
- Architectural Style
- Coastal
- Direction Faces
- Southeast
- Occupant Type
- Vacant
Size & Structure
- Living Area
- 1,699 sqft
- Total Area
- 1,699 sqft
- Lot Size
- 0.04 acres
- Lot Sq Ft
- 1,872 sqft
- Bedrooms
- 3
- Full Baths
- 2
- Half Baths
- 1
- Garage Spaces
- 1
- Stories
- 2
Interior
- Flooring
- Carpet, Tile
- Appliances
- Dishwasher, Disposal, Dryer, Electric Water Heater, Microwave, Range, Refrigerator, Washer
- Interior Features
- Eat-in Kitchen, In Wall Pest System, Kitchen/Family Room Combo, Living Room/Dining Room Combo, Open Floorplan, PrimaryBedroom Upstairs, Split Bedroom, Stone Counters, Thermostat, Walk-In Closet(s), Window Treatments
- Laundry
- Inside, Upper Level
- Windows
- Blinds, Double Pane Windows, Insulated Windows, Low-Emissivity Windows
- Furnished
- Unfurnished
- A/C
- Central Air
- Heating
- Central, Electric, Heat Pump
Exterior & Lot
- Exterior Features
- Lighting, Rain Gutters, Sidewalk, Sliding Doors
- Construction
- HardiPlank Type, Frame
- Roof
- Shingle
- Foundation
- Slab
- Patio/Porch
- Covered, Rear Porch
- Lot Features
- Cleared, Cul-De-Sac, Landscaped, Sidewalk, Paved
- View
- Water
Water & Pool
Community & HOA
- HOA
- Yes
- HOA Fee
- $230/Monthly
- HOA Amenities
- Playground, Pool
- Community Features
- Dog Park, Playground, Pool
- Pets Allowed
- Number Limit, Yes
- Security
- Smoke Detector(s)
Utilities & Systems
- Water
- Public
- Sewer
- Public Sewer
- Utilities
- Cable Available, Electricity Connected, Public, Sewer Connected, Underground Utilities, Water Connected
- Cooling
- Central Air
- Heating
- Central, Electric, Heat Pump
- Flood Zone
- X
- Parking
- Driveway, Garage Door Opener
- Energy Efficient
- Appliances, HVAC, Insulation, Lighting, Roof, Thermostat, Water Heater, Windows
Financial
- List Price
- $325,990
- Annual Taxes
- $1,450
- Tax Year
- 2025
- Listing Terms
- Cash, Conventional, FHA, VA Loan
- Special Conditions
- None
- Possession
- Close Of Escrow
Schools
- Elementary
- Idyllwilde Elementary
- Middle School
- Markham Woods Middle
- High School
- Seminole High