1 / 37
$449,900
Original: $499,900
Active
420 JACKS MEMORIAL ROAD
ST CLOUD, FL 34769 — S L & I C
4 Beds
3 Baths
2,502 sqft
1.18 acres
Built 1925
About This Property
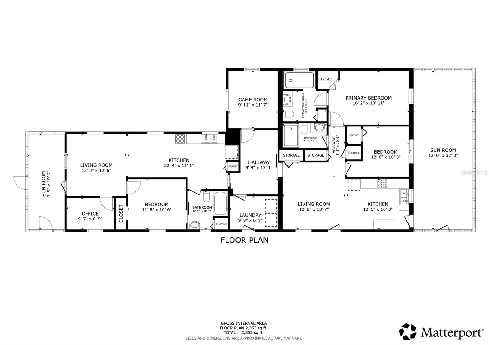
One or more photo(s) has been virtually staged. TWO HOUSES IN ONE! WITH SEPARATE ENTRANCE! Discover the perfect blend of space, privacy, and flexibility in this beautifully expanded one-story home on 1.18 acres in St. Cloud. Originally built in 1925 and thoughtfully modernized, this property now offers nearly 2,500 sq ft of living area, including a permitted 858 sq ft addition (2008) with a spacious living room, dining room, two additional bedrooms, and two bathrooms. The home features 4 bedrooms, 3 full baths, a metal + gable roof, and a 2009 upgraded 2.5-ton HVAC system.
A large 12×33 insulated screen room (2009) provides extra outdoor living space overlooking the peaceful acreage. The home’s layout includes a flexible multi-purpose prep/entertaining area adjacent to the main kitchen—ideal for guests, catering, hobby cooking, or multi-generational convenience (single-family zoning; not a separate dwelling).
With no HOA, plenty of room for parking, storage sheds, gardening, toys, pets, or small projects, this property offers the freedom and space you’ve been looking for. A rare opportunity to own a well-maintained, fully permitted, move-in-ready home on acreage just minutes from shopping, schools, and major roads. Bring your vision and enjoy country living with city convenience!
A large 12×33 insulated screen room (2009) provides extra outdoor living space overlooking the peaceful acreage. The home’s layout includes a flexible multi-purpose prep/entertaining area adjacent to the main kitchen—ideal for guests, catering, hobby cooking, or multi-generational convenience (single-family zoning; not a separate dwelling).
With no HOA, plenty of room for parking, storage sheds, gardening, toys, pets, or small projects, this property offers the freedom and space you’ve been looking for. A rare opportunity to own a well-maintained, fully permitted, move-in-ready home on acreage just minutes from shopping, schools, and major roads. Bring your vision and enjoy country living with city convenience!
Property Details
Basics
- Property Type
- Residential
- Property Subtype
- Single Family Residence
- MLS Number
- S5138639
- Days on Market
- 134
- Year Built
- 1925
- Levels
- One
- Additional Rooms
- Bonus Room,Inside Utility,Interior In-Law Suite w/Private Entry
- Direction Faces
- East
- Occupant Type
- Owner
Size & Structure
- Living Area
- 2,502 sqft
- Total Area
- 1,990 sqft
- Lot Size
- 1.18 acres
- Lot Sq Ft
- 51,401 sqft
- Bedrooms
- 4
- Full Baths
- 3
- Stories
- 1
Interior
- Flooring
- Carpet, Laminate
- Appliances
- Electric Water Heater, Range, Range Hood, Refrigerator
- Interior Features
- Accessibility Features, Ceiling Fans(s), Eat-in Kitchen, Kitchen/Family Room Combo, Primary Bedroom Main Floor, Split Bedroom, Walk-In Closet(s)
- Laundry
- Laundry Room
- Windows
- Blinds
- A/C
- Central Air, Zoned
- Heating
- Central, Electric
Exterior & Lot
- Exterior Features
- Rain Gutters, Sliding Doors, Storage
- Construction
- Block, Stucco, Vinyl Siding, Frame
- Roof
- Metal, Shingle
- Foundation
- Slab
- Patio/Porch
- Porch
- Other Structures
- Shed(s), Storage
- Fencing
- Wire
- Lot Features
- Cleared, In County, Street Dead-End, Paved
Water & Pool
Community & HOA
- HOA
- No
- Community Features
- Street Lights
- Pets Allowed
- Yes
- Homestead
- Yes
Utilities & Systems
- Water
- Public
- Sewer
- Septic Tank
- Utilities
- BB/HS Internet Available, Cable Available, Electricity Available, Electricity Connected, Public, Underground Utilities
- Cooling
- Central Air, Zoned
- Heating
- Central, Electric
- Flood Zone
- X
Financial
- List Price
- $449,900
- Original Price
- $499,900
- Annual Taxes
- $1,479
- Tax Year
- 2024
- Listing Terms
- Cash, Conventional
- Special Conditions
- None
- Possession
- Close Of Escrow