1 / 23
$338,890
Active
412 BERYL COVE
SANFORD, FL 32771 — EMERALD POINTE AT BERYL LANDING
3 Beds
3 Baths
1,699 sqft
0.04 acres
Built 2026
1-Car Garage
About This Property
Under Construction. Welcome home to Emerald Pointe at Beryl Landing - a new construction townhome community with an ideal location in the growing city of Sanford. Future planned community amenities will include a pool with cabana, dog park, children’s playground, and 1 Gig high speed internet – all with a low HOA and no CDD! Convenient to the Sanford Riverwalk with a waterfront trail and park, eateries, breweries, shopping, live entertainment, and more. And with a commute of less than 2 minutes to I-4 and 417, your affordable new townhome is well within reach. Hurry in – townhomes in this highly-anticipated community are already selling quickly!
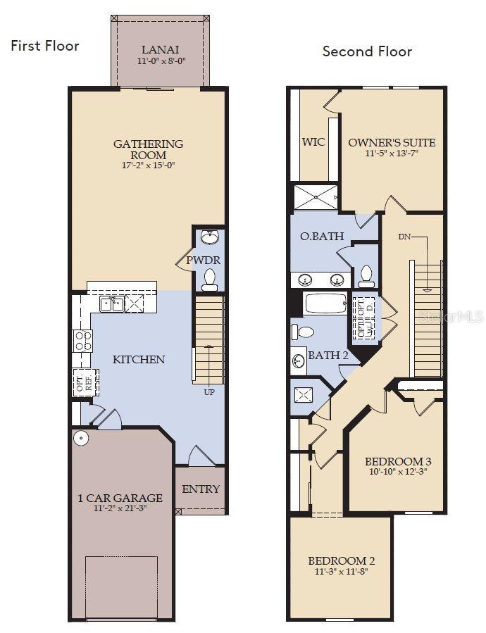
Discover the perfect blend of convenience and luxury in this Springdale two-story townhome. This interior-unit townhome offers 3 spacious bedrooms, 2 full bathrooms, a powder room, and a single-car garage, complemented by a covered lanai. The open-concept first floor is perfect for modern living, with a kitchen featuring quartz countertops, stone gray cabinetry, stylish tile backsplash, and stainless-steel Whirlpool appliances, including a refrigerator. The open concept gathering room and café area flow seamlessly into the covered lanai, providing a perfect setting for entertaining or simply relaxing. Upstairs, retreat to your private Owner’s Suite, which boasts a generous walk-in closet and a luxurious en suite bathroom complete with a double-sink quartz vanity, a walk-in shower with a glass enclosure, and ample storage space. Two additional bedrooms, a secondary bathroom, and a conveniently located laundry room offer both privacy and functionality. With elegant, professionally curated design selections including porcelain flooring, soft and stain-resistant Shaw carpet, and designer window blinds, this home is as beautiful as it is practical. Don’t miss the opportunity to make this sophisticated townhome yours—schedule a tour today and experience the luxury and ease of modern living!
Discover the perfect blend of convenience and luxury in this Springdale two-story townhome. This interior-unit townhome offers 3 spacious bedrooms, 2 full bathrooms, a powder room, and a single-car garage, complemented by a covered lanai. The open-concept first floor is perfect for modern living, with a kitchen featuring quartz countertops, stone gray cabinetry, stylish tile backsplash, and stainless-steel Whirlpool appliances, including a refrigerator. The open concept gathering room and café area flow seamlessly into the covered lanai, providing a perfect setting for entertaining or simply relaxing. Upstairs, retreat to your private Owner’s Suite, which boasts a generous walk-in closet and a luxurious en suite bathroom complete with a double-sink quartz vanity, a walk-in shower with a glass enclosure, and ample storage space. Two additional bedrooms, a secondary bathroom, and a conveniently located laundry room offer both privacy and functionality. With elegant, professionally curated design selections including porcelain flooring, soft and stain-resistant Shaw carpet, and designer window blinds, this home is as beautiful as it is practical. Don’t miss the opportunity to make this sophisticated townhome yours—schedule a tour today and experience the luxury and ease of modern living!
Property Details
Basics
- Property Type
- Residential
- Property Subtype
- Townhouse
- MLS Number
- O6401587
- Days on Market
- 1
- Year Built
- 2026
- New Construction
- Yes
- Levels
- Two
- Architectural Style
- Craftsman
- Direction Faces
- Southeast
- Occupant Type
- Vacant
Size & Structure
- Living Area
- 1,699 sqft
- Total Area
- 1,699 sqft
- Lot Size
- 0.04 acres
- Lot Sq Ft
- 1,854 sqft
- Bedrooms
- 3
- Full Baths
- 2
- Half Baths
- 1
- Garage Spaces
- 1
- Stories
- 2
Interior
- Flooring
- Carpet, Tile
- Appliances
- Dishwasher, Disposal, Dryer, Electric Water Heater, Microwave, Range, Refrigerator, Washer
- Interior Features
- Eat-in Kitchen, In Wall Pest System, Kitchen/Family Room Combo, Living Room/Dining Room Combo, Open Floorplan, PrimaryBedroom Upstairs, Split Bedroom, Stone Counters, Thermostat, Walk-In Closet(s), Window Treatments
- Laundry
- Inside, Upper Level
- Windows
- Blinds, Double Pane Windows, Insulated Windows, Low-Emissivity Windows
- Furnished
- Unfurnished
- A/C
- Central Air
- Heating
- Central, Electric, Heat Pump
Exterior & Lot
- Exterior Features
- Lighting, Rain Gutters, Sidewalk, Sliding Doors
- Construction
- HardiPlank Type, Frame
- Roof
- Shingle
- Foundation
- Slab
- Patio/Porch
- Covered, Rear Porch
- Lot Features
- Cleared, Landscaped, Sidewalk, Paved
Water & Pool
Community & HOA
- HOA
- Yes
- HOA Fee
- $230/Monthly
- HOA Amenities
- Playground, Pool
- Community Features
- Dog Park, Playground, Pool
- Pets Allowed
- Number Limit, Yes
- Security
- Smoke Detector(s)
Utilities & Systems
- Water
- Public
- Sewer
- Public Sewer
- Utilities
- Cable Available, Electricity Connected, Public, Sewer Connected, Underground Utilities, Water Connected
- Cooling
- Central Air
- Heating
- Central, Electric, Heat Pump
- Flood Zone
- X
- Parking
- Driveway, Garage Door Opener
- Energy Efficient
- Appliances, HVAC, Insulation, Lighting, Roof, Thermostat, Water Heater, Windows
Financial
- List Price
- $338,890
- Annual Taxes
- $1,450
- Tax Year
- 2025
- Listing Terms
- Cash, Conventional, FHA, VA Loan
- Special Conditions
- None
- Possession
- Close Of Escrow
Schools
- Elementary
- Idyllwilde Elementary
- Middle School
- Markham Woods Middle
- High School
- Seminole High