1 / 23
$337,990
Active
408 BERYL COVE
SANFORD, FL 32771 — EMERALD POINTE AT BERYL LANDING
3 Beds
3 Baths
1,699 sqft
0.04 acres
Built 2026
1-Car Garage
About This Property
Under Construction. Welcome home to Emerald Pointe at Beryl Landing - a new construction townhome community with an ideal location in the growing city of Sanford. Future planned community amenities will include a pool with cabana, dog park, children’s playground, and 1 Gig high speed internet – all with a low HOA and no CDD! Convenient to the Sanford Riverwalk with a waterfront trail and park, eateries, breweries, shopping, live entertainment, and more. And with a commute of less than 2 minutes to I-4 and 417, your affordable new townhome is well within reach. Hurry in – townhomes in this highly-anticipated community are already selling quickly!
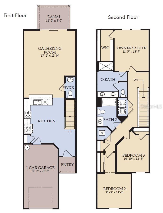
Discover the perfect blend of convenience and luxury in this move-in ready Springdale two-story townhome. This interior-unit townhome offers 3 spacious bedrooms, 2 full bathrooms, a powder room, and a single-car garage, complemented by a covered lanai. The open-concept first floor is perfect for modern living, with a gourmet kitchen featuring quartz countertops, sleek Elkins White cabinetry, a decorative tile backsplash, and stainless-steel Whirlpool appliances, including a refrigerator. The open concept gathering room and café area flow seamlessly into the covered lanai, providing a perfect setting for entertaining or simply relaxing. Upstairs, retreat to your private Owner’s Suite, which boasts a generous walk-in closet and a luxurious en suite bathroom complete with a double-sink quartz vanity, a walk-in shower with a glass enclosure, and ample storage space. Two additional bedrooms, a secondary bathroom, and a conveniently located laundry room offer both privacy and functionality. With elegant, professionally curated design selections including tile flooring, soft and stain-resistant Shaw Brand carpet, Whirlpool washer and dryer, and 2” faux wood blinds, this home is as beautiful as it is practical. Don’t miss the opportunity to make this sophisticated townhome yours—schedule a tour today and experience the luxury and ease of modern living!
Discover the perfect blend of convenience and luxury in this move-in ready Springdale two-story townhome. This interior-unit townhome offers 3 spacious bedrooms, 2 full bathrooms, a powder room, and a single-car garage, complemented by a covered lanai. The open-concept first floor is perfect for modern living, with a gourmet kitchen featuring quartz countertops, sleek Elkins White cabinetry, a decorative tile backsplash, and stainless-steel Whirlpool appliances, including a refrigerator. The open concept gathering room and café area flow seamlessly into the covered lanai, providing a perfect setting for entertaining or simply relaxing. Upstairs, retreat to your private Owner’s Suite, which boasts a generous walk-in closet and a luxurious en suite bathroom complete with a double-sink quartz vanity, a walk-in shower with a glass enclosure, and ample storage space. Two additional bedrooms, a secondary bathroom, and a conveniently located laundry room offer both privacy and functionality. With elegant, professionally curated design selections including tile flooring, soft and stain-resistant Shaw Brand carpet, Whirlpool washer and dryer, and 2” faux wood blinds, this home is as beautiful as it is practical. Don’t miss the opportunity to make this sophisticated townhome yours—schedule a tour today and experience the luxury and ease of modern living!
Property Details
Basics
- Property Type
- Residential
- Property Subtype
- Townhouse
- MLS Number
- O6401618
- Days on Market
- 1
- Year Built
- 2026
- New Construction
- Yes
- Levels
- Two
- Architectural Style
- Craftsman
- Direction Faces
- Southeast
- Occupant Type
- Vacant
Size & Structure
- Living Area
- 1,699 sqft
- Total Area
- 1,699 sqft
- Lot Size
- 0.04 acres
- Lot Sq Ft
- 1,854 sqft
- Bedrooms
- 3
- Full Baths
- 2
- Half Baths
- 1
- Garage Spaces
- 1
- Stories
- 2
Interior
- Flooring
- Carpet, Tile
- Appliances
- Dishwasher, Disposal, Dryer, Electric Water Heater, Microwave, Range, Refrigerator, Washer
- Interior Features
- Eat-in Kitchen, In Wall Pest System, Kitchen/Family Room Combo, Living Room/Dining Room Combo, Open Floorplan, PrimaryBedroom Upstairs, Split Bedroom, Stone Counters, Thermostat, Walk-In Closet(s), Window Treatments
- Laundry
- Inside, Upper Level
- Windows
- Blinds, Double Pane Windows, Insulated Windows, Low-Emissivity Windows
- Furnished
- Unfurnished
- A/C
- Central Air
- Heating
- Central, Electric, Heat Pump
Exterior & Lot
- Exterior Features
- Lighting, Rain Gutters, Sidewalk, Sliding Doors
- Construction
- HardiPlank Type, Frame
- Roof
- Shingle
- Foundation
- Slab
- Patio/Porch
- Covered, Rear Porch
- Lot Features
- Cleared, Landscaped, Sidewalk, Paved
Water & Pool
Community & HOA
- HOA
- Yes
- HOA Fee
- $230/Monthly
- HOA Amenities
- Playground, Pool
- Community Features
- Dog Park, Playground, Pool
- Pets Allowed
- Number Limit, Yes
- Security
- Smoke Detector(s)
Utilities & Systems
- Water
- Public
- Sewer
- Public Sewer
- Utilities
- Cable Available, Electricity Connected, Public, Sewer Connected, Underground Utilities, Water Connected
- Cooling
- Central Air
- Heating
- Central, Electric, Heat Pump
- Flood Zone
- X
- Parking
- Driveway, Garage Door Opener
- Energy Efficient
- Appliances, HVAC, Insulation, Lighting, Roof, Thermostat, Water Heater, Windows
Financial
- List Price
- $337,990
- Annual Taxes
- $1,450
- Tax Year
- 2025
- Listing Terms
- Cash, Conventional, FHA, VA Loan
- Special Conditions
- None
- Possession
- Close Of Escrow
Schools
- Elementary
- Idyllwilde Elementary
- Middle School
- Markham Woods Middle
- High School
- Seminole High