1 / 62
$995,000
Active
3705 RIDGE RUN DRIVE
MINNEOLA, FL 34715 — SUGARLOAF MOUNTAIN UNIT 1B
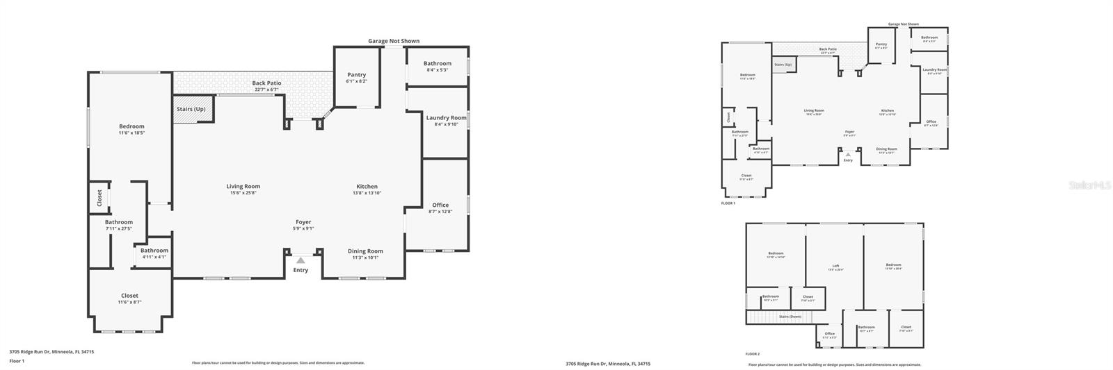
3 Beds
4 Baths
3,065 sqft
0.31 acres
Built 2022
4-Car Garage
About This Property
Welcome to your dream home in the gated Sugarloaf Mountain community of Minneola, perched on a high elevation along the Central Florida Ridge where luxury and craftsmanship come together.
Built in 2022, this custom Craftsman masterpiece offers over 3,000 square feet of refined living, featuring 3 bedrooms, 3.5 bathrooms, and an impressive 4-car garage—perfect for buyers who demand both elegance and functionality.
From the moment you arrive, the home makes a statement. A lush, landscaped lawn, flagstone walkway, and classic tile rocking-chair front porch lead to a tall custom entry door, setting the tone for the craftsmanship found throughout.
Step inside and prepare to be wowed.
The main living space showcases soaring ceilings, elegant porcelain tile flooring, and a stunning modern floating wood staircase. A dramatic wall of glass floods the home with natural light while framing peaceful views of the private lanai—creating the perfect blend of indoor and outdoor living.
The chef’s kitchen is designed to impress with:
• Premium quartz countertops
• Custom all-wood cabinetry
• Built-in appliances
• Stylish granite sink
• Oversized walk-in pantry with a barn door accent
Just outside, the oversized covered lanai becomes your private resort. Enjoy evenings entertaining with a fully equipped summer kitchen, relax in the 15-jetted high-pressure spa, or gather with friends on the spacious paver patio areas.
The primary suite on the main level is a true retreat featuring:
-Oversized marble floor shower
-Dual vanities
-Private water closet
-Massive 10x12 walk-in closet with custom built-ins and natural light
Also on the main level: a private office, stylish half bath, and upgraded laundry room with sink, quartz counters, and abundant cabinetry.
Upstairs, the custom floating staircase leads to a spacious bonus room, two oversized bedrooms with walk-in closets and en-suite baths, plus an office nook. Every upstairs room enjoys spectacular sunrise views of Lake Apopka on the horizon.
This home also delivers rare high-end construction features, including:
• Dual 20 SEER HVAC systems with HALO air purifiers
• Integrated damper system & linear slot diffusers
• Spray foam insulation in roof, attic, walls, and garage
• Soundproofing for upstairs rooms
• Inspired Shade window coverings
Location is everything—and this one is exceptional. Just minutes from:
• Montverde Academy
• Green Mountain Scenic Overlook
• Lake Minneola High School
• The Clermont Chain of Lakes
• Florida’s Turnpike & Orlando attractions
Homes with this level of design, efficiency, and mountain-ridge elevation views rarely become available.
Luxury. Privacy Craftsmanship.
This is more than a home — it’s a lifestyle.
Schedule your private showing today and make this custom Sugarloaf Mountain masterpiece your NextHome.
Built in 2022, this custom Craftsman masterpiece offers over 3,000 square feet of refined living, featuring 3 bedrooms, 3.5 bathrooms, and an impressive 4-car garage—perfect for buyers who demand both elegance and functionality.
From the moment you arrive, the home makes a statement. A lush, landscaped lawn, flagstone walkway, and classic tile rocking-chair front porch lead to a tall custom entry door, setting the tone for the craftsmanship found throughout.
Step inside and prepare to be wowed.
The main living space showcases soaring ceilings, elegant porcelain tile flooring, and a stunning modern floating wood staircase. A dramatic wall of glass floods the home with natural light while framing peaceful views of the private lanai—creating the perfect blend of indoor and outdoor living.
The chef’s kitchen is designed to impress with:
• Premium quartz countertops
• Custom all-wood cabinetry
• Built-in appliances
• Stylish granite sink
• Oversized walk-in pantry with a barn door accent
Just outside, the oversized covered lanai becomes your private resort. Enjoy evenings entertaining with a fully equipped summer kitchen, relax in the 15-jetted high-pressure spa, or gather with friends on the spacious paver patio areas.
The primary suite on the main level is a true retreat featuring:
-Oversized marble floor shower
-Dual vanities
-Private water closet
-Massive 10x12 walk-in closet with custom built-ins and natural light
Also on the main level: a private office, stylish half bath, and upgraded laundry room with sink, quartz counters, and abundant cabinetry.
Upstairs, the custom floating staircase leads to a spacious bonus room, two oversized bedrooms with walk-in closets and en-suite baths, plus an office nook. Every upstairs room enjoys spectacular sunrise views of Lake Apopka on the horizon.
This home also delivers rare high-end construction features, including:
• Dual 20 SEER HVAC systems with HALO air purifiers
• Integrated damper system & linear slot diffusers
• Spray foam insulation in roof, attic, walls, and garage
• Soundproofing for upstairs rooms
• Inspired Shade window coverings
Location is everything—and this one is exceptional. Just minutes from:
• Montverde Academy
• Green Mountain Scenic Overlook
• Lake Minneola High School
• The Clermont Chain of Lakes
• Florida’s Turnpike & Orlando attractions
Homes with this level of design, efficiency, and mountain-ridge elevation views rarely become available.
Luxury. Privacy Craftsmanship.
This is more than a home — it’s a lifestyle.
Schedule your private showing today and make this custom Sugarloaf Mountain masterpiece your NextHome.
Property Details
Basics
- Property Type
- Residential
- Property Subtype
- Single Family Residence
- MLS Number
- O6388144
- Days on Market
- 12
- Year Built
- 2022
- Levels
- Two
- Architectural Style
- Custom
- Additional Rooms
- Bonus Room
- Direction Faces
- East
- Occupant Type
- Owner
Size & Structure
- Living Area
- 3,065 sqft
- Total Area
- 5,723 sqft
- Lot Size
- 0.31 acres
- Lot Sq Ft
- 13,600 sqft
- Bedrooms
- 3
- Full Baths
- 3
- Half Baths
- 1
- Garage Spaces
- 4
Interior
- Flooring
- Tile, Ceramic Tile
- Appliances
- Gas Water Heater, Microwave, Refrigerator, Convection Oven, Cooktop, Dishwasher, Disposal
- Interior Features
- High Ceilings, Open Floorplan, Solid Wood Cabinets, Stone Counters, Thermostat, Walk-In Closet(s), Window Treatments
- Laundry
- Laundry Room, Inside
- Windows
- Blinds, Double Pane Windows, ENERGY STAR Qualified Windows
- Furnished
- Unfurnished
- A/C
- Central Air
- Heating
- Central
Exterior & Lot
- Exterior Features
- Courtyard, Lighting, Outdoor Kitchen, Private Yard, Rain Gutters
- Construction
- Brick, Stucco
- Roof
- Shingle
- Foundation
- Slab
- Patio/Porch
- Covered, Front Porch, Patio, Rear Porch
- Other Structures
- Outdoor Kitchen, Storage
- Fencing
- Vinyl
- Lot Features
- Cleared, Gentle Sloping, In County, Oversized Lot, Private, Sidewalk
Water & Pool
- Pool
- Yes — Gunite, Heated, In Ground, Lighting
- Spa
- Yes — In Ground
Community & HOA
- HOA
- Yes
- HOA Fee
- $500/Annually
- Community Features
- Sidewalks
- Pets Allowed
- Yes
Utilities & Systems
- Water
- Public
- Sewer
- Public Sewer
- Utilities
- BB/HS Internet Available, Phone Available, Propane, Public, Sewer Connected, Underground Utilities, Water Connected, Cable Connected, Electricity Connected, Fire Hydrant
- Cooling
- Central Air
- Heating
- Central
- Flood Zone
- X
- Parking
- Boat, Driveway, Garage Faces Rear, Garage Faces Side, Ground Level, Guest, Oversized, Garage, Workshop in Garage
Financial
- List Price
- $995,000
- Annual Taxes
- $5,639
- Tax Year
- 2025
- Listing Terms
- Cash, Conventional, FHA, USDA Loan, VA Loan
- Special Conditions
- None
- Possession
- Negotiable
Schools
- Elementary
- Astatula Elem
- Middle School
- East Ridge Middle
- High School
- Lake Minneola High