1 / 10
$944,990
Active
3539 WOLVES CREEK PLACE
APOPKA, FL 32712 — WILLOW RUN
3 Beds
5 Baths
4,728 sqft
0.33 acres
Built 2026
4-Car Garage
About This Property
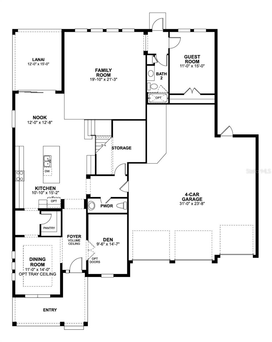
Under Construction. If you're searching for a spacious, single-story home that offers 5 bedrooms, 4 baths, and a 4-car garage, 3539 Wolves Creek Place in Apopka, FL is your perfect match! With 4,728 square feet of thoughtfully designed living space, this plan combines privacy, comfort, and versatility for today's modern lifestyle.
Step inside and be welcomed by a formal dining room and a private den, ideal for hosting elegant dinners or creating a quiet home office. At the heart of the home, the open-concept kitchen shines with a large island and an inviting eat-in nook, all overlooking the impressive 20' x 21' family room—perfect for entertaining or relaxing with loved ones.
A first-floor guest suite just off the family room makes multi-generational living effortless. Oversized windows and 8-foot pocket sliding doors flood the home with natural light and create a seamless connection to the outdoors, where you can enjoy your lanai in style.
Upstairs, discover a loft retreat surrounded by secondary bedrooms and the luxurious owner's suite, featuring a spacious walk-in closet, dual vanities, linen storage, a separate shower and a soaking tub for a spa-like experience.
Contact us today to learn more!
Step inside and be welcomed by a formal dining room and a private den, ideal for hosting elegant dinners or creating a quiet home office. At the heart of the home, the open-concept kitchen shines with a large island and an inviting eat-in nook, all overlooking the impressive 20' x 21' family room—perfect for entertaining or relaxing with loved ones.
A first-floor guest suite just off the family room makes multi-generational living effortless. Oversized windows and 8-foot pocket sliding doors flood the home with natural light and create a seamless connection to the outdoors, where you can enjoy your lanai in style.
Upstairs, discover a loft retreat surrounded by secondary bedrooms and the luxurious owner's suite, featuring a spacious walk-in closet, dual vanities, linen storage, a separate shower and a soaking tub for a spa-like experience.
Contact us today to learn more!
Property Details
Basics
- Property Type
- Residential
- Property Subtype
- Single Family Residence
- MLS Number
- O6399991
- Days on Market
- 14
- Year Built
- 2026
- New Construction
- Yes
- Levels
- Two
- Additional Rooms
- Den/Library/Office,Formal Dining Room Separate,Loft
- Direction Faces
- North
- Occupant Type
- Vacant
Size & Structure
- Living Area
- 4,728 sqft
- Total Area
- 4,728 sqft
- Lot Size
- 0.33 acres
- Lot Sq Ft
- 14,386 sqft
- Bedrooms
- 3
- Full Baths
- 4
- Half Baths
- 1
- Garage Spaces
- 4
Interior
- Flooring
- Carpet, Ceramic Tile, Luxury Vinyl
- Appliances
- Dishwasher, Disposal, Microwave
- Interior Features
- Crown Molding, Eat-in Kitchen, High Ceilings, Open Floorplan, Thermostat, Walk-In Closet(s)
- Laundry
- Inside
- Furnished
- Unfurnished
- A/C
- Central Air
- Heating
- Central
Exterior & Lot
- Exterior Features
- Lighting, Rain Gutters, Sidewalk, Sliding Doors
- Construction
- Block, Cement Siding, Stucco
- Roof
- Shingle
- Foundation
- Slab
- Patio/Porch
- Front Porch, Other
- Lot Features
- Corner Lot, Landscaped, Sidewalk, Paved
Water & Pool
Community & HOA
- HOA
- Yes
- HOA Fee
- $190/Monthly
- HOA Amenities
- Fence Restrictions, Gated
- Community Features
- Community Mailbox, Deed Restrictions, Gated Community - No Guard, Sidewalks, Street Lights
- Pets Allowed
- Yes
- Security
- Gated Community
Utilities & Systems
- Water
- Public
- Sewer
- Public Sewer
- Utilities
- Cable Available, Fiber Optics, Natural Gas Available, Sewer Connected, Underground Utilities
- Cooling
- Central Air
- Heating
- Central
- Flood Zone
- X
- Parking
- Driveway, Garage Door Opener, Oversized
Financial
- List Price
- $944,990
- Annual Taxes
- $61
- Tax Year
- 2025
- Listing Terms
- Cash, Conventional, FHA, VA Loan
- Special Conditions
- None
Schools
- Elementary
- Wolf Lake Elem
- Middle School
- Wolf Lake Middle
- High School
- Apopka High