1 / 21
$349,290
Original: $334,290
Active
3173 CANYON BAY POINT
SANFORD, FL 32773 — SKYLAR CREST
3 Beds
3 Baths
1,699 sqft
0.04 acres
Built 2026
1-Car Garage
About This Property
Under Construction. Welcome to Skylar Crest – a new townhome community all about location! Situated off of Lake Mary Blvd, your new home will provide quick access to downtown Sanford and the RiverWalk, plus all of the shopping & dining Lake Mary has to offer. Just 5 minutes to 417, private homesites, and a resort-style pool, cabana, and playground will provide everything you’re looking for!
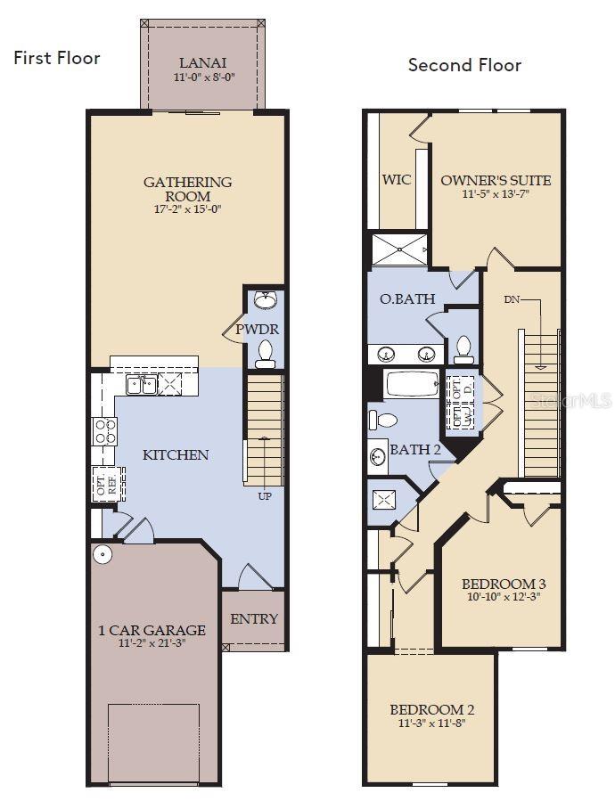
This gorgeous move-in ready interior-unit Springdale two-story townhome that features our Craftsman exterior, Classic Calm design package, 3 bedrooms, 2 full bathrooms, a powder room, a single-car garage, a covered lanai, washer, dryer, refrigerator and window blinds. The spacious first floor is ideal for entertaining, featuring a powder room, open concept gathering room, café and kitchen and a covered lanai. The kitchen is equipped with a pantry, Trenton Flagstone cabinetry, Blanco Maple quartz countertops and beautiful Perla tile flooring. After a long day, retreat upstairs to your private oasis. The Owner's Suite features a spacious walk-in closet and en suite bathroom with a double sink quartz-topped coffee vanity, a linen closet, private water closet and walk-in shower. Two additional bedrooms, the secondary bathroom and the laundry are also on the second floor, offering privacy and space for everyone. Professionally curated design selections for this popular Springdale townhome include a washer, dryer, refrigerator, blinds, upgraded cabinetry with quartz countertops, designer tile accents in the kitchen and showers, Boston Perla tile flooring in the living areas, bathrooms and laundry room, soft, stain-resistant Ornamental Gate carpet in the bedrooms and second floor living areas and so much more!
This gorgeous move-in ready interior-unit Springdale two-story townhome that features our Craftsman exterior, Classic Calm design package, 3 bedrooms, 2 full bathrooms, a powder room, a single-car garage, a covered lanai, washer, dryer, refrigerator and window blinds. The spacious first floor is ideal for entertaining, featuring a powder room, open concept gathering room, café and kitchen and a covered lanai. The kitchen is equipped with a pantry, Trenton Flagstone cabinetry, Blanco Maple quartz countertops and beautiful Perla tile flooring. After a long day, retreat upstairs to your private oasis. The Owner's Suite features a spacious walk-in closet and en suite bathroom with a double sink quartz-topped coffee vanity, a linen closet, private water closet and walk-in shower. Two additional bedrooms, the secondary bathroom and the laundry are also on the second floor, offering privacy and space for everyone. Professionally curated design selections for this popular Springdale townhome include a washer, dryer, refrigerator, blinds, upgraded cabinetry with quartz countertops, designer tile accents in the kitchen and showers, Boston Perla tile flooring in the living areas, bathrooms and laundry room, soft, stain-resistant Ornamental Gate carpet in the bedrooms and second floor living areas and so much more!
Property Details
Basics
- Property Type
- Residential
- Property Subtype
- Townhouse
- MLS Number
- O6384411
- Days on Market
- 30
- Year Built
- 2026
- New Construction
- Yes
- Levels
- Two
- Architectural Style
- Craftsman
- Direction Faces
- North
- Occupant Type
- Vacant
Size & Structure
- Living Area
- 1,699 sqft
- Total Area
- 1,699 sqft
- Lot Size
- 0.04 acres
- Lot Sq Ft
- 1,818 sqft
- Bedrooms
- 3
- Full Baths
- 2
- Half Baths
- 1
- Garage Spaces
- 1
- Stories
- 2
Interior
- Flooring
- Carpet, Tile
- Appliances
- Dishwasher, Disposal, Dryer, Electric Water Heater, Microwave, Range, Refrigerator, Washer
- Interior Features
- Eat-in Kitchen, Kitchen/Family Room Combo, Living Room/Dining Room Combo, Open Floorplan, Pest Guard System, PrimaryBedroom Upstairs, Split Bedroom, Stone Counters, Thermostat, Walk-In Closet(s), Window Treatments
- Laundry
- Inside, Laundry Closet, Upper Level
- Windows
- Blinds, Double Pane Windows, Insulated Windows, Low-Emissivity Windows
- Furnished
- Unfurnished
- A/C
- Central Air
- Heating
- Central, Electric, Heat Pump
Exterior & Lot
- Exterior Features
- Lighting, Rain Gutters, Sidewalk, Sliding Doors
- Construction
- HardiPlank Type, Frame
- Roof
- Shingle
- Foundation
- Slab
- Patio/Porch
- Covered, Rear Porch
- Lot Features
- Cleared, Landscaped, Sidewalk, Paved
- View
- Water
Water & Pool
Community & HOA
- HOA
- Yes
- HOA Fee
- $235/Monthly
- HOA Amenities
- Cable TV, Playground, Pool, Trail(s)
- Community Features
- Playground, Pool, Sidewalks
- Pets Allowed
- Yes
- Security
- Smoke Detector(s)
Utilities & Systems
- Water
- Public
- Sewer
- Public Sewer
- Utilities
- Cable Available, Electricity Connected, Public, Sewer Connected, Underground Utilities, Water Connected
- Cooling
- Central Air
- Heating
- Central, Electric, Heat Pump
- Flood Zone
- X
- Parking
- Driveway, Garage Door Opener
- Energy Efficient
- HVAC, Insulation, Lighting, Roof, Thermostat, Water Heater, Windows
Financial
- List Price
- $349,290
- Original Price
- $334,290
- Annual Taxes
- $1,541
- Tax Year
- 2025
- Listing Terms
- Cash, Conventional, FHA, VA Loan
- Special Conditions
- None
- Possession
- Close Of Escrow
Schools
- Elementary
- Midway Elementary
- Middle School
- Sanford Middle
- High School
- Seminole High