1 / 20
$584,990
Active
2738 LAUGHING GULL LANE
ST CLOUD, FL 34773 — BAY LAKE FARMS AT ST CLOUD
5 Beds
4 Baths
3,120 sqft
0.14 acres
Built 2025
3-Car Garage
About This Property
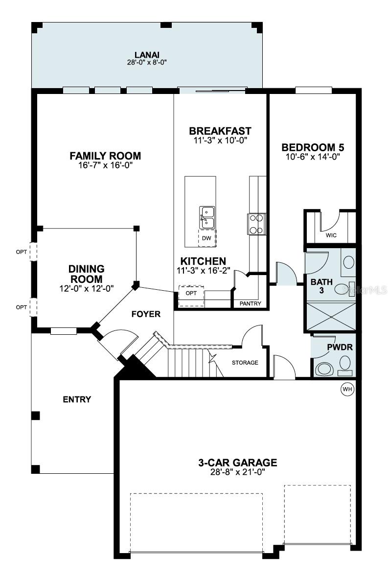
Under Construction. Discover this stunning new construction home located at 2738 Laughing Gull Lane in Saint Cloud. Built by M/I Homes, this thoughtfully designed 5-bedroom, 3.5-bathroom home offers 3,120 square feet of comfortable living space and a 3-car garage.
The open-concept living space creates a seamless flow between the kitchen, dining, and family areas, perfect for both daily living and entertaining. This well-crafted floorplan maximizes functionality while maintaining an inviting atmosphere throughout.
The kitchen features an expansive island, ample cabinetry, and stainless steel appliances, while the family room offers backyard views and access to the extended lanai. A convenient guest suite and a powder bath complete the first floor.
Upstairs, find the bedrooms strategically placed for privacy, with a spacious loft in between. The owner's suite boasts two walk-in closets and an en-suite bath with separate vanities, a walk-in shower, and a free-standing tub.
This home represents an opportunity to own a brand-new home with contemporary features and a practical layout. The careful attention to design details and quality construction standards make this an exceptional choice for buyers seeking a move-in ready home in a desirable Saint Cloud location. Contact us today to learn more!
The open-concept living space creates a seamless flow between the kitchen, dining, and family areas, perfect for both daily living and entertaining. This well-crafted floorplan maximizes functionality while maintaining an inviting atmosphere throughout.
The kitchen features an expansive island, ample cabinetry, and stainless steel appliances, while the family room offers backyard views and access to the extended lanai. A convenient guest suite and a powder bath complete the first floor.
Upstairs, find the bedrooms strategically placed for privacy, with a spacious loft in between. The owner's suite boasts two walk-in closets and an en-suite bath with separate vanities, a walk-in shower, and a free-standing tub.
This home represents an opportunity to own a brand-new home with contemporary features and a practical layout. The careful attention to design details and quality construction standards make this an exceptional choice for buyers seeking a move-in ready home in a desirable Saint Cloud location. Contact us today to learn more!
Property Details
Basics
- Property Type
- Residential
- Property Subtype
- Single Family Residence
- MLS Number
- O6387801
- Days on Market
- 33
- Year Built
- 2025
- New Construction
- Yes
- Levels
- Two
- Additional Rooms
- Loft
- Direction Faces
- Northwest
- Occupant Type
- Vacant
Size & Structure
- Living Area
- 3,120 sqft
- Total Area
- 3,120 sqft
- Lot Size
- 0.14 acres
- Lot Sq Ft
- 6,000 sqft
- Bedrooms
- 5
- Full Baths
- 3
- Half Baths
- 1
- Garage Spaces
- 3
Interior
- Flooring
- Carpet, Ceramic Tile
- Appliances
- Built-In Oven, Cooktop, Dishwasher, Disposal, Electric Water Heater, Microwave, Range Hood
- Interior Features
- Crown Molding, Eat-in Kitchen, Living Room/Dining Room Combo, Open Floorplan, PrimaryBedroom Upstairs, Solid Surface Counters, Thermostat, Tray Ceiling(s), Walk-In Closet(s)
- Laundry
- Inside
- Furnished
- Unfurnished
- A/C
- Central Air
- Heating
- Central
Exterior & Lot
- Exterior Features
- Sidewalk, Sliding Doors
- Construction
- Stucco, Vinyl Siding
- Roof
- Shingle
- Foundation
- Slab
- Patio/Porch
- Other
- Lot Features
- Landscaped, Sidewalk, Paved
- View
- Water
Water & Pool
Community & HOA
- HOA
- Yes
- HOA Fee
- $125/Monthly
- HOA Amenities
- Playground, Pool
- Community Features
- Community Mailbox, Dog Park, Park, Playground, Pool, Sidewalks
- Pets Allowed
- Yes
- Security
- Smoke Detector(s)
Utilities & Systems
- Water
- Public
- Sewer
- Public Sewer
- Utilities
- Cable Connected, Electricity Connected, Water Connected
- Cooling
- Central Air
- Heating
- Central
- Flood Zone
- X
- Parking
- Driveway, Garage Door Opener
Financial
- List Price
- $584,990
- Annual Taxes
- $970
- Tax Year
- 2025
- Listing Terms
- Cash, Conventional, FHA, USDA Loan, VA Loan
- Special Conditions
- None
Schools
- Elementary
- Harmony Community School (K-5)
- Middle School
- Harmony Middle
- High School
- Harmony High