1 / 49
$489,900
Original: $550,000
Active
2735 GRASSMOOR LOOP
APOPKA, FL 32712 — ARBOR RDG PH 03
5 Beds
4 Baths
3,683 sqft
0.29 acres
Built 2008
3-Car Garage
About This Property
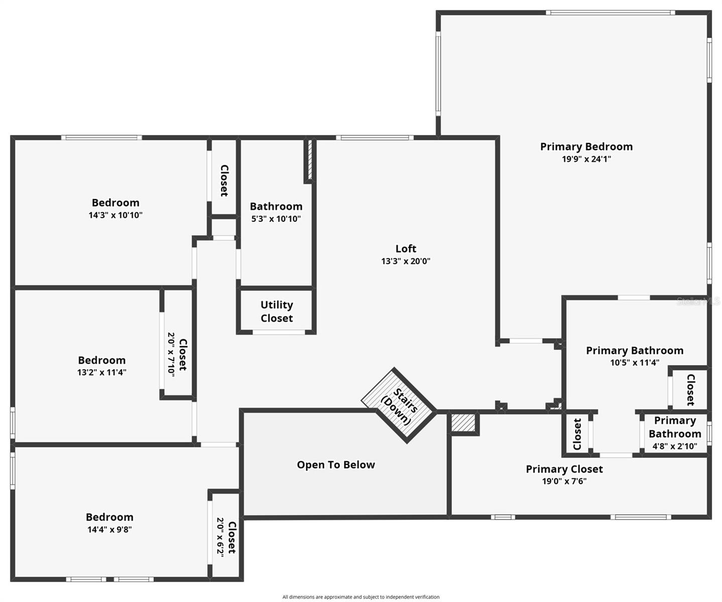
Short Sale. Short Sale, Discover this expansive two story home offering approximately 3,600 sq ft of versatile living space, a 3 car garage, and beautiful views overlooking a peaceful preserve. Designed with both comfort and functionality in mind, this home features an impressive kitchen with abundant cabinetry and extensive countertop space—ideal for cooking, hosting, or daily family life. The kitchen seamlessly connects to the living and dining areas, creating a spacious open concept layout perfect for entertaining. There’s even enough room to comfortably fit a pool table.
A standout feature of this property is the flexible private suite located on the main level. Complete with its own bedroom, bathroom, and living area, it’s perfect as an in law suite or can serve as an alternative primary bedroom. Upstairs, you’ll find another generously sized primary suite with space for a sitting area and a massive walk in closet. Three additional bedrooms and a versatile loft—ideal for an office, gaming space, or lounge this home offers plenty of room for everyone.
Location Highlights
Situated in Apopka, just 25 minutes northwest of Orlando, this home places you near some of Central Florida’s most beautiful natural attractions. Enjoy stunning natural springs, hiking, camping, and scenic trails, along with a variety of local restaurants and regular community events including live music and weekend farmers markets.
Charming Mount Dora is approximately 23 minutes away, known for its arts and crafts scene, chain of lakes, unique shops, and one of the largest antique markets in the region. With abundant recreational options and vibrant nearby communities, this location offers the perfect balance of tranquility and convenience.
This home truly blends spacious design, multi generational flexibility, and an exceptional location—offering the lifestyle you’ve been searching for.
A standout feature of this property is the flexible private suite located on the main level. Complete with its own bedroom, bathroom, and living area, it’s perfect as an in law suite or can serve as an alternative primary bedroom. Upstairs, you’ll find another generously sized primary suite with space for a sitting area and a massive walk in closet. Three additional bedrooms and a versatile loft—ideal for an office, gaming space, or lounge this home offers plenty of room for everyone.
Location Highlights
Situated in Apopka, just 25 minutes northwest of Orlando, this home places you near some of Central Florida’s most beautiful natural attractions. Enjoy stunning natural springs, hiking, camping, and scenic trails, along with a variety of local restaurants and regular community events including live music and weekend farmers markets.
Charming Mount Dora is approximately 23 minutes away, known for its arts and crafts scene, chain of lakes, unique shops, and one of the largest antique markets in the region. With abundant recreational options and vibrant nearby communities, this location offers the perfect balance of tranquility and convenience.
This home truly blends spacious design, multi generational flexibility, and an exceptional location—offering the lifestyle you’ve been searching for.
Property Details
Basics
- Property Type
- Residential
- Property Subtype
- Single Family Residence
- MLS Number
- O6385349
- Days on Market
- 84
- Year Built
- 2008
- Levels
- Two
- Direction Faces
- Northeast
- Occupant Type
- Owner
Size & Structure
- Living Area
- 3,683 sqft
- Total Area
- 4,475 sqft
- Lot Size
- 0.29 acres
- Lot Sq Ft
- 12,727 sqft
- Bedrooms
- 5
- Full Baths
- 3
- Half Baths
- 1
- Garage Spaces
- 3
- Stories
- 2
Interior
- Flooring
- Carpet, Tile
- Appliances
- Range, Refrigerator
- Interior Features
- Ceiling Fans(s), High Ceilings, Kitchen/Family Room Combo, Open Floorplan, Primary Bedroom Main Floor, Walk-In Closet(s)
- Laundry
- Laundry Room
- Furnished
- Unfurnished
- A/C
- Central Air
- Heating
- Central
Exterior & Lot
- Exterior Features
- Sidewalk, Sliding Doors
- Construction
- Block, Stucco, Frame
- Roof
- Shingle
- Foundation
- Slab
Water & Pool
Community & HOA
- HOA
- Yes
- HOA Fee
- $288/Quarterly
- Pets Allowed
- No
- Homestead
- Yes
Utilities & Systems
- Water
- Public
- Sewer
- Public Sewer
- Utilities
- Electricity Connected, Sewer Connected
- Cooling
- Central Air
- Heating
- Central
- Flood Zone
- X
Financial
- List Price
- $489,900
- Original Price
- $550,000
- Annual Taxes
- $3,657
- Tax Year
- 2024
- Listing Terms
- Cash, Conventional
- Special Conditions
- Short Sale
- Possession
- Close Of Escrow