1 / 28
$455,000
Original: $470,000
Active
2348 MYSTIC MAZE LANE
CLERMONT, FL 34715 — VILLAGES AT MINNEOLA HILLS
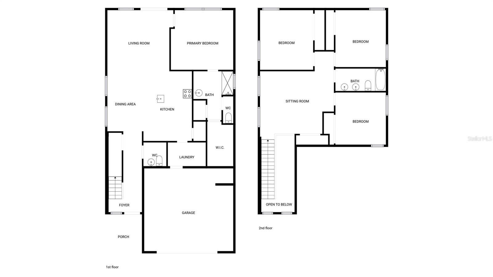
4 Beds
3 Baths
2,226 sqft
0.11 acres
Built 2022
2-Car Garage
About This Property
Welcome to 2348 Mystic Maze Ln, where elegance meets everyday comfort. The heart of the home is a beautifully designed kitchen featuring a large island and stainless steel appliances—perfect for cooking, entertaining, and gathering. The spacious primary suite offers a true retreat, complete with a generous walk-in closet and en-suite bathroom featuring dual sinks for added convenience. Thoughtful upgrades enhance both comfort and peace of mind, including a whole home water filtration system and a security system with motion sensors. Step outside to the covered patio, an ideal space to enjoy your morning coffee or unwind in the evening.This home is a perfect blend of style and functionality, waiting for you to make it your own.. Included 100-Day Home Warranty with buyer activation
Property Details
Basics
- Property Type
- Residential
- Property Subtype
- Single Family Residence
- MLS Number
- O6384375
- Days on Market
- 35
- Year Built
- 2022
- Levels
- Two
- Direction Faces
- East
- Occupant Type
- Vacant
Size & Structure
- Living Area
- 2,226 sqft
- Total Area
- 2,226 sqft
- Lot Size
- 0.11 acres
- Lot Sq Ft
- 4,685 sqft
- Bedrooms
- 4
- Full Baths
- 2
- Half Baths
- 1
- Garage Spaces
- 2
Interior
- Flooring
- Carpet
- Appliances
- Electric Water Heater, Other, Range
- Interior Features
- Living Room/Dining Room Combo, Primary Bedroom Main Floor
- Laundry
- Laundry Room
- Furnished
- Unfurnished
- A/C
- Central Air
- Heating
- Central
Exterior & Lot
- Exterior Features
- Other
- Construction
- Block, Stucco
- Roof
- Shingle
- Foundation
- Slab
Water & Pool
Community & HOA
- HOA
- Yes
- HOA Fee
- $118/Quarterly
- Community Features
- Pool
- Pets Allowed
- Yes
- Security
- Security System Owned
Utilities & Systems
- Water
- Public
- Sewer
- Public Sewer
- Utilities
- Electricity Available, Water Available
- Cooling
- Central Air
- Heating
- Central
- Flood Zone
- X
- Parking
- Driveway
Financial
- List Price
- $455,000
- Original Price
- $470,000
- Annual Taxes
- $7,182
- Tax Year
- 2025
- Listing Terms
- Cash, Conventional, VA Loan
- Special Conditions
- None