1 / 32
$318,000
Original: $322,000
Active
1909 SPRING SHOWER CIRCLE
KISSIMMEE, FL 34744 — TOHOQUA PH 5B
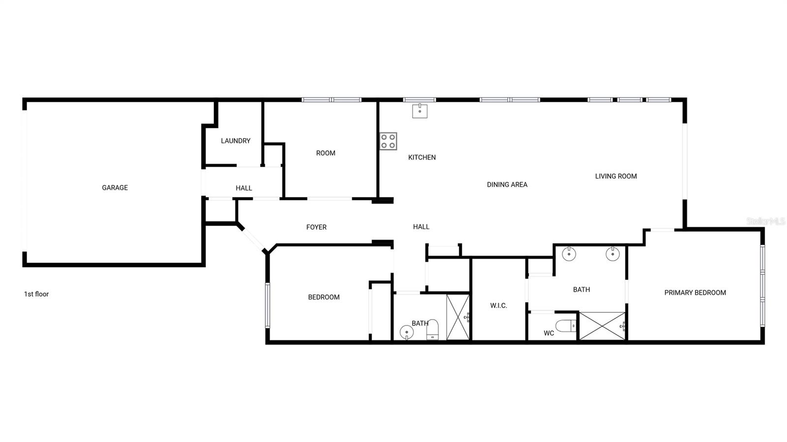
2 Beds
2 Baths
1,545 sqft
0.10 acres
Built 2024
2-Car Garage
About This Property
The property is in an age-restricted community. Welcome to 1909 Spring Shower Cir, where modern living meets comfort. The kitchen is a chef's dream, boasting all stainless steel appliances and a convenient kitchen island for meal prep. The accent backsplash adds a touch of elegance to the space. The primary bedroom is a true retreat, featuring a spacious walk-in closet for all your storage needs. The primary bathroom is designed with luxury in mind, with double sinks for added convenience. This home is a blend of style and functionality that is sure to impress. Included 100-Day Home Warranty with buyer activation
Property Details
Basics
- Property Type
- Residential
- Property Subtype
- Half Duplex
- MLS Number
- O6372925
- Days on Market
- 73
- Year Built
- 2024
- Levels
- One
- Direction Faces
- West
- Occupant Type
- Vacant
Size & Structure
- Living Area
- 1,545 sqft
- Total Area
- 1,545 sqft
- Lot Size
- 0.10 acres
- Lot Sq Ft
- 4,356 sqft
- Bedrooms
- 2
- Full Baths
- 2
- Garage Spaces
- 2
Interior
- Flooring
- Tile
- Appliances
- Dishwasher, Electric Water Heater, Microwave, Other
- Interior Features
- Ceiling Fans(s), L Dining, Primary Bedroom Main Floor, Stone Counters
- Laundry
- Laundry Room
- Furnished
- Unfurnished
- A/C
- Central Air
- Heating
- Central
Exterior & Lot
- Exterior Features
- Other
- Construction
- Block, Stucco
- Roof
- Shingle
- Foundation
- Slab
Water & Pool
Community & HOA
- HOA
- Yes
- HOA Fee
- $659/Quarterly
- Community Features
- Gated Community - No Guard, Pool
- Pets Allowed
- Yes
- Senior Community
- Yes
- Security
- Security System Owned
Utilities & Systems
- Water
- Public
- Sewer
- Public Sewer
- Utilities
- Electricity Available, Water Available
- Cooling
- Central Air
- Heating
- Central
- Flood Zone
- AE
- Parking
- Driveway
Financial
- List Price
- $318,000
- Original Price
- $322,000
- Annual Taxes
- $4,300
- Tax Year
- 2025
- Listing Terms
- Cash, Conventional
- Special Conditions
- None