1 / 70
$3,875,000
Original: $4,197,000
Active
1782 PINE AVENUE
WINTER PARK, FL 32789 — CONWILL ESTATES
5 Beds
7 Baths
4,782 sqft
0.36 acres
Built 2026
4-Car Garage
About This Property
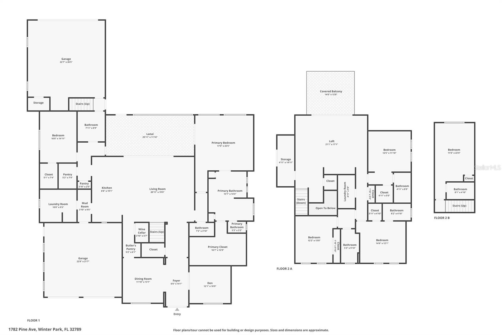
(HUGE PRICE REDUCTION & NEWLY ENHANCED REAR LANDSCAPING ADDED FOR EXCEPTIONAL PRIVACY AND MORE SECLUDED OUTDOOR LIVING EXPERIENCE) Step into this stunning West-Indies inspired luxury home crafted by Nautilus Homes, where tropical charm meets timeless elegance. An architectural masterpiece in the City of Winter Park. This five-bedroom seven-bath home that includes a private in-law suite offers plenty of exquisite interior features. The home welcomes you with a beautifully designed 16 ft wide circular driveway wrapped in upgraded pavers, offering both elegance and functionality. A very rare 4-car garage in Winter Park with two in the rear and two in the front of the home. Starting with entering through massive 10 ft. double iron doors flowing into the foyer with 11ft high ceiling beginning with the flex/office room and formal dining to your left and right. Followed by entering the gallery that leads to the great room. The Chef’s Kitchen, a culinary dream featuring an oversized center island, quartz countertops throughout, custom 42"+15" wood cabinetry, a custom walk-in pantry, and top-of-the-line Thermador professional series. That Includes a 48' refrigerator, 48" gas cooktop, custom hood, dishwasher, built-in microwave, double convection ovens and built in coffee station. On your way to the formal dining, you pass by the show-stopping, Tempered glass wine room. Its crystal-clear glass enclosure offers a striking view of your curated collection, while the built-in wine chiller ensures each bottle is perfectly preserved. This elegant transition creates a seamless blend of function and sophistication, setting the tone for unforgettable dining experiences just steps away. The primary suite offers tranquility peace of mind, and the primary bath has a spa-like oasis with a spacious shower stand-alone tub. Followed by a custom closet thoughtfully design with plenty of room and storage. The guest retreat area has a huge bedroom, access to a full bath including private access to the Lania and pool. Tucked away with its own private entrance attached to the rear garage, the in-law suite above the garage offers the perfect blend of comfort and independence. This thoughtfully designed space includes a full bath, a cozy living area, and a convenient space with a kitchenette—ideal for extended stays or multi-generational living. Make your way to the second floor that has 11ft ceilings as well. As you reach the top the space opens into a massive game room with a wet bar, perfect for entertainment retreat with a balcony. All second-floor bedrooms have a thoughtfully design with a full bath for privacy. As you make your way back downstairs to outside, step through the oversized sliding glass doors and into your private outdoor oasis. Effortlessly extending your living space into the open air. Just beyond, the sparkling gas heated/saltwater pool and spa framed by lush landscaping and designed for both relaxation and recreation. Also, the fully equipped summer kitchen features gas grille, beverage refrigerator and ample counter space—perfect for alfresco dining and effortless entertaining. This masterpiece is equipped with a full irrigation system around the home, exterior lighting, exterior cameras for security. Smart home system ready for lighting, music and security controlled by Control 4 system for your convenience. Interlachen Golf community less than 5 min, Phelps Park walking distance, Park Ave 10 min and restaurant and retail minutes away.
Property Details
Basics
- Property Type
- Residential
- Property Subtype
- Single Family Residence
- MLS Number
- O6389039
- Days on Market
- 79
- Year Built
- 2026
- New Construction
- Yes
- Levels
- Two
- Architectural Style
- Coastal, Custom
- Floor Number
- 2
- Additional Rooms
- Attic,Inside Utility,Interior In-Law Suite w/Private Entry
- Direction Faces
- South
- Occupant Type
- Vacant
Size & Structure
- Living Area
- 4,782 sqft
- Total Area
- 6,723 sqft
- Lot Size
- 0.36 acres
- Lot Sq Ft
- 15,709 sqft
- Bedrooms
- 5
- Full Baths
- 6
- Half Baths
- 1
- Garage Spaces
- 4
- Stories
- 2
Interior
- Flooring
- Hardwood, Tile
- Appliances
- Bar Fridge, Convection Oven, Dishwasher, Disposal, Gas Water Heater, Ice Maker, Microwave, Refrigerator, Tankless Water Heater, Wine Refrigerator
- Interior Features
- Ceiling Fans(s), Crown Molding, Dry Bar, Dumbwaiter, High Ceilings, Open Floorplan, Primary Bedroom Main Floor, Smart Home, Solid Wood Cabinets, Stone Counters, Thermostat, Walk-In Closet(s), Wet Bar
- Laundry
- Electric Dryer Hookup, Inside, Laundry Room, Upper Level, Washer Hookup
- Furnished
- Unfurnished
- A/C
- Central Air
- Heating
- Electric
Exterior & Lot
- Exterior Features
- Balcony, French Doors, Lighting, Outdoor Kitchen, Outdoor Shower, Private Yard, Rain Gutters, Sliding Doors
- Construction
- Block, Concrete, Stucco, Frame
- Roof
- Metal, Shingle
- Foundation
- Slab
- Patio/Porch
- Covered, Enclosed, Front Porch, Patio, Screened
- Fencing
- Vinyl
- Lot Features
- Corner Lot, City Limits, Landscaped, Paved
Water & Pool
- Pool
- Yes — Gunite, Heated, In Ground, Pool Alarm, Salt Water
- Spa
- Yes — Heated, In Ground
Community & HOA
- HOA
- No
- Community Features
- Golf Carts OK, Park, Playground, Sidewalks, Tennis Court(s), Street Lights
- Security
- Closed Circuit Camera(s), Security Lights, Security System, Security System Owned, Smoke Detector(s)
Utilities & Systems
- Water
- Public
- Sewer
- Public Sewer
- Utilities
- BB/HS Internet Available, Cable Available, Electricity Connected, Phone Available, Propane, Public, Sewer Connected, Underground Utilities, Water Connected
- Cooling
- Central Air
- Heating
- Electric
- Flood Zone
- X
- Parking
- Circular Driveway, Driveway, Garage Door Opener, Garage Faces Rear
Financial
- List Price
- $3,875,000
- Original Price
- $4,197,000
- Annual Taxes
- $4,880
- Tax Year
- 2025
- Listing Terms
- Cash, Conventional
- Special Conditions
- None
- Possession
- Close Of Escrow
Schools
- Elementary
- Lakemont Elem
- Middle School
- Maitland Middle
- High School
- Winter Park High