1 / 7
$819,391
Active
17060 HAGGERTY HOLLOW DRIVE
WINTER GARDEN, FL 34787 — HAMLIN MEADOWS AT HAMLIN
6 Beds
5 Baths
3,117 sqft
0.14 acres
Built 2026
2-Car Garage
About This Property
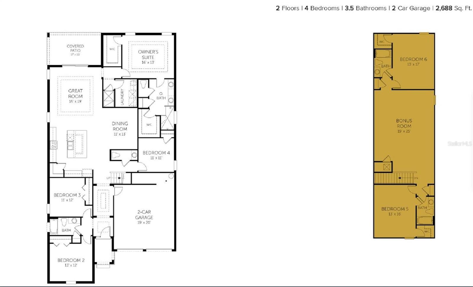
One or more photo(s) has been virtually staged. Pre-Construction. To be built. Sample Images Welcome to this beautifully designed six-bedroom, four-bathroom home located in the sought-after, newly developed Hamlin Meadows community. Offering an ideal blend of space, functionality, and modern living, this thoughtfully crafted floor plan features the primary suite and additional bedrooms on the main level, with the fifth and sixth bedrooms privately situated upstairs along with a spacious bonus room—perfect for a media room, game room, or guest retreat.
The main level showcases an open-concept layout with a generous great room, dining area, and well-appointed kitchen that flows seamlessly for both everyday living and entertaining. The primary suite offers a comfortable retreat with a large walk-in closet and private bath. Additional bedrooms on the first floor provide flexibility for guests, office space, or multi-generational living.
Upstairs, you’ll find two additional bedrooms and a full bath, along with an expansive bonus room that adds valuable living space.
Hamlin Meadows is a thoughtfully planned community offering a variety of homesites and product types, including rear-load townhomes and single-family homes. Conveniently located just minutes from Hamlin Town Center, residents enjoy easy access to shopping, dining, and entertainment.
The main level showcases an open-concept layout with a generous great room, dining area, and well-appointed kitchen that flows seamlessly for both everyday living and entertaining. The primary suite offers a comfortable retreat with a large walk-in closet and private bath. Additional bedrooms on the first floor provide flexibility for guests, office space, or multi-generational living.
Upstairs, you’ll find two additional bedrooms and a full bath, along with an expansive bonus room that adds valuable living space.
Hamlin Meadows is a thoughtfully planned community offering a variety of homesites and product types, including rear-load townhomes and single-family homes. Conveniently located just minutes from Hamlin Town Center, residents enjoy easy access to shopping, dining, and entertainment.
Property Details
Basics
- Property Type
- Residential
- Property Subtype
- Single Family Residence
- MLS Number
- G5109737
- Days on Market
- 33
- Year Built
- 2026
- New Construction
- Yes
- Levels
- Two
- Architectural Style
- Traditional
- Direction Faces
- North
- Occupant Type
- Vacant
Size & Structure
- Living Area
- 3,117 sqft
- Total Area
- 5,000 sqft
- Lot Size
- 0.14 acres
- Lot Sq Ft
- 5,000 sqft
- Bedrooms
- 6
- Full Baths
- 4
- Half Baths
- 1
- Garage Spaces
- 2
Interior
- Flooring
- Carpet, Tile
- Appliances
- Dishwasher, Disposal, Electric Water Heater, Exhaust Fan, Microwave, Range
- Interior Features
- Kitchen/Family Room Combo, Living Room/Dining Room Combo, Open Floorplan, PrimaryBedroom Upstairs, Solid Surface Counters, Thermostat, Walk-In Closet(s)
- Laundry
- Electric Dryer Hookup, Inside, Laundry Room, Washer Hookup
- Furnished
- Unfurnished
- A/C
- Central Air
- Heating
- Central
Exterior & Lot
- Exterior Features
- Lighting, Sidewalk, Sprinkler Metered
- Construction
- Block, Stucco, Frame
- Roof
- Shingle
- Foundation
- Slab
- Patio/Porch
- Covered, Front Porch, Patio, Rear Porch
Water & Pool
Community & HOA
- HOA
- Yes
- HOA Fee
- $140/Monthly
- HOA Amenities
- Fence Restrictions, Playground
- Community Features
- Community Mailbox, Deed Restrictions, Playground, Sidewalks
- Pets Allowed
- Yes
- Security
- Smoke Detector(s)
Utilities & Systems
- Water
- Public
- Sewer
- Public Sewer
- Utilities
- Cable Available, Electricity Available, Public, Sewer Available, Underground Utilities, Water Available
- Cooling
- Central Air
- Heating
- Central
- Flood Zone
- x
- Parking
- Driveway, Garage Door Opener
Financial
- List Price
- $819,391
- Annual Taxes
- $0
- Tax Year
- 2025
- Listing Terms
- Cash, Conventional, FHA, VA Loan
- Special Conditions
- None
- Possession
- Close Of Escrow
Schools
- Elementary
- Hamlin Elementary
- Middle School
- Hamlin Middle
- High School
- Horizon High School