1 / 19
$394,500
Original: $415,000
Active
1701 S BUMBY AVENUE
ORLANDO, FL 32806 — HANDSONHURST PARK
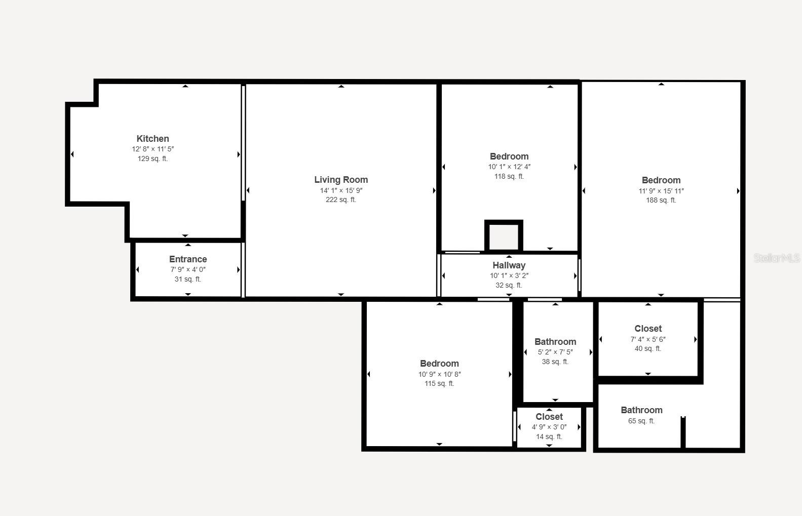
3 Beds
2 Baths
1,138 sqft
0.15 acres
Built 1999
1-Car Garage
About This Property
REDUCED. Owner Motivated. This charming home offers the perfect opportunity to live in the desirable Curry Ford West neighborhood or retain the current tenants for an excellent income-producing rental in the vibrant Hourglass District. Just a short, enjoyable walk away, you'll find Hourglass Brewing, Claddagh Cottage, Tamale Co., F&D Italian Kitchen, and the many other restaurants, bars, and shops that make the Hourglass District such a lively local hotspot. Whether you're heading out for a casual dinner and drinks or popping into your favorite boutiques, everything you need for an effortless lifestyle is right at your doorstep. For even more options, hop on your e-bike and reach the Milk District, Thornton Park, downtown Orlando, or the Mills 50 area in under 10 minutes—saving time and parking hassles. Commuting farther afield? You're less than 5 minutes from major highways like the 408 and I-4, providing quick access to anywhere in Central Florida. The home itself is meticulously maintained and truly move-in ready, with no immediate updates needed. Key recent improvements include: Roof replaced in 2019, Windows and sliding glass door replaced in 2023, HVAC system installed in 2018, Water heater replaced in 2018, Fully fenced yard added in 2018, Water main to the street replaced in 2024, Both bathrooms were beautifully remodeled in 2022, and the entire interior features stylish, durable wood-look ceramic tile flooring throughout. Enjoy peaceful, quiet living in a prime location that's surprisingly close to downtown energy, yet with plenty of walkable dining and entertainment to keep your weekends relaxed and close to home. This is truly the best of both worlds in one of Orlando's most sought-after areas.
Property Details
Basics
- Property Type
- Residential
- Property Subtype
- Single Family Residence
- MLS Number
- O6392860
- Days on Market
- 43
- Year Built
- 1999
- Levels
- One
- Architectural Style
- Ranch
- Direction Faces
- West
- Occupant Type
- Owner
Size & Structure
- Living Area
- 1,138 sqft
- Total Area
- 1,374 sqft
- Lot Size
- 0.15 acres
- Lot Sq Ft
- 6,501 sqft
- Bedrooms
- 3
- Full Baths
- 2
- Garage Spaces
- 1
- Stories
- 1
Interior
- Flooring
- Ceramic Tile
- Appliances
- Dishwasher, Disposal, Dryer, Electric Water Heater, Range, Refrigerator, Washer
- Interior Features
- Cathedral Ceiling(s), Ceiling Fans(s), Eat-in Kitchen, High Ceilings, Kitchen/Family Room Combo, Primary Bedroom Main Floor, Vaulted Ceiling(s), Walk-In Closet(s)
- Laundry
- In Garage
- Windows
- Double Pane Windows, ENERGY STAR Qualified Windows, Insulated Windows
- Furnished
- Unfurnished
- A/C
- Central Air
- Heating
- Central, Electric
Exterior & Lot
- Exterior Features
- Private Mailbox, Sidewalk, Sliding Doors
- Construction
- Block, Stucco
- Roof
- Shingle
- Foundation
- Slab
- Fencing
- Fenced, Vinyl, Wood
- Lot Features
- In County, Landscaped, Sidewalk, Paved
Water & Pool
Community & HOA
- HOA
- No
- Pets Allowed
- Cats OK, Dogs OK
- Security
- Security System, Security System Owned, Smoke Detector(s)
Utilities & Systems
- Water
- Public
- Sewer
- Septic Tank
- Utilities
- BB/HS Internet Available, Electricity Connected
- Cooling
- Central Air
- Heating
- Central, Electric
- Flood Zone
- X
- Parking
- Garage Door Opener
Financial
- List Price
- $394,500
- Original Price
- $415,000
- Annual Taxes
- $4,852
- Tax Year
- 2025
- Listing Terms
- Cash, Conventional, FHA, VA Loan
- Special Conditions
- None
Schools
- Elementary
- Lake Como Elem
- Middle School
- Howard Middle
- High School
- Boone High