1 / 32
$448,000
Original: $460,000
Active
14124 YELLOW WOOD CIRCLE
ORLANDO, FL 32828 — WATERFORD CHASE VILLAGE TR D
4 Beds
2 Baths
1,913 sqft
0.12 acres
Built 1999
2-Car Garage
About This Property
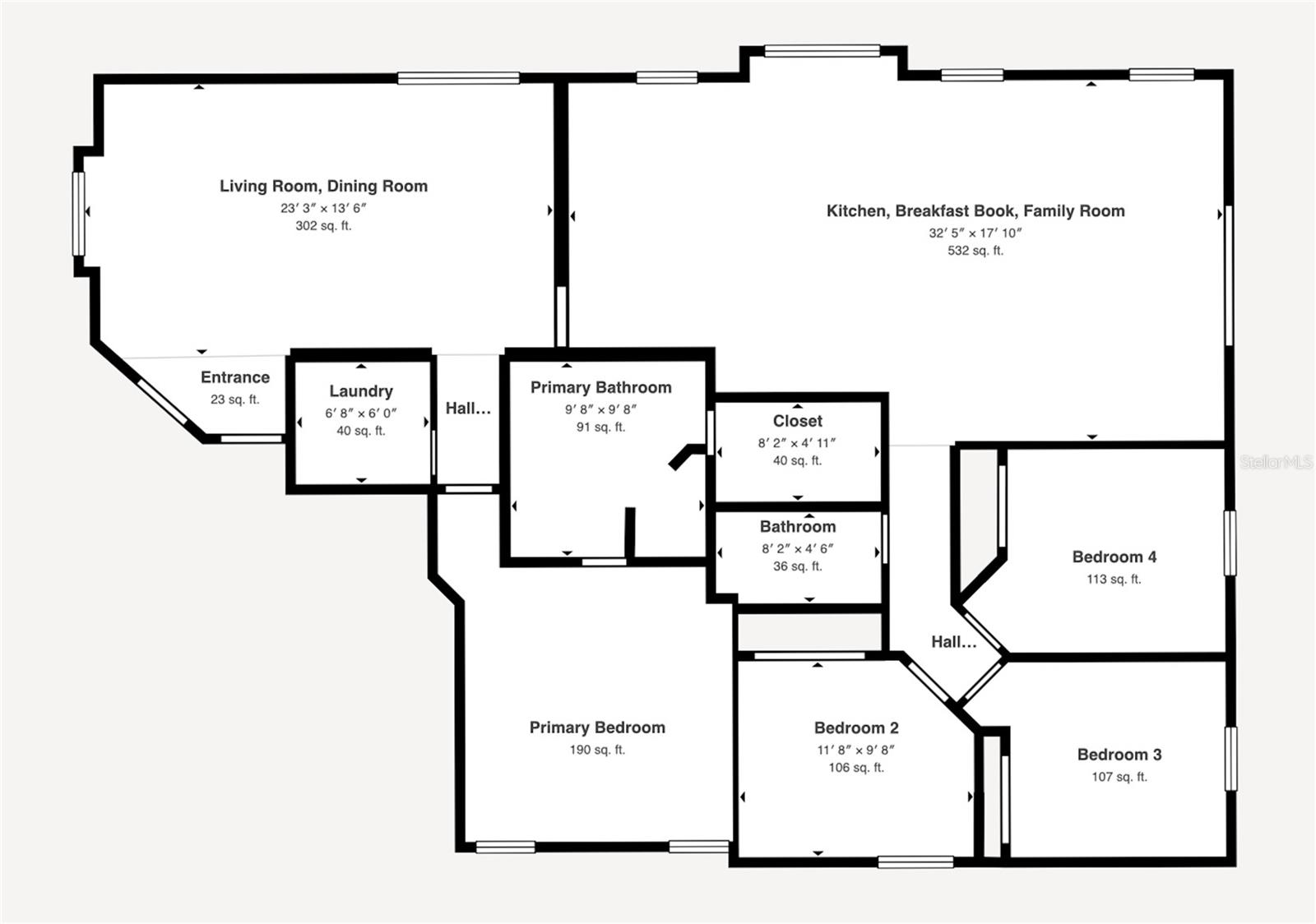
One or more photo(s) has been virtually staged. 2023 A/C, 2019 Tankless Water Heater, 2016 Roof! In between Waterford Lakes and Avalon Park lay the community of Waterford Chase. Surrounded by all the conveniences of the East Orlando area, this immediately available property is ready to be your next home sweet home. The 4 bedroom, 2 bathroom floor plan provides a split plan bedroom arrangement along with two separate areas for gathering. The living & dining rooms are combined in the front of the home, leading to a separate open-concept area that holds the kitchen, dinette & spacious family room. The primary suite serves as a relaxing retreat, highlighted by a skylight in the en-suite bathroom that fills the space with natural light. Additional features include an interior laundry room with cabinetry and sink, plus a 2-car garage with a workshop area. Outdoor living becomes a welcomed extension of the home with a covered, screen-enclosed back porch and a separate paver patio with stone firepit completely open to Florida’s night sky. This Waterford Chase home is tucked away inside the single-entry Brookehaven subdivision which means no passthru traffic. Waterford Chase Recreation Park is approximately ¼ mile from this property and is home to HOA recreational amenities such as a playground, picnic area, tennis & basketball courts, sand volleyball, and outdoor fitness station. Come meet your next home!
Property Details
Basics
- Property Type
- Residential
- Property Subtype
- Single Family Residence
- MLS Number
- O6396744
- Days on Market
- 19
- Year Built
- 1999
- Levels
- One
- Architectural Style
- Florida
- Additional Rooms
- Inside Utility
- Direction Faces
- South
- Occupant Type
- Vacant
Size & Structure
- Living Area
- 1,913 sqft
- Total Area
- 2,359 sqft
- Lot Size
- 0.12 acres
- Lot Sq Ft
- 5,249 sqft
- Bedrooms
- 4
- Full Baths
- 2
- Garage Spaces
- 2
Interior
- Flooring
- Ceramic Tile, Laminate
- Appliances
- Dishwasher, Disposal, Microwave, Range, Refrigerator
- Interior Features
- Ceiling Fans(s), High Ceilings, Kitchen/Family Room Combo, Living Room/Dining Room Combo, Open Floorplan, Split Bedroom, Vaulted Ceiling(s), Walk-In Closet(s), Window Treatments
- Laundry
- Inside, Laundry Room
- Windows
- Skylight(s), Blinds
- Furnished
- Unfurnished
- A/C
- Central Air
- Heating
- Central
Exterior & Lot
- Exterior Features
- Rain Gutters, Sliding Doors
- Construction
- Block, Stucco
- Roof
- Shingle
- Foundation
- Slab
- Patio/Porch
- Covered, Rear Porch, Screened
- Other Structures
- Shed(s)
- Fencing
- Fenced
Water & Pool
Community & HOA
- HOA
- Yes
- HOA Fee
- $475/Annually
- Pets Allowed
- Yes
Utilities & Systems
- Water
- Public
- Sewer
- Public Sewer
- Utilities
- Electricity Connected, Sewer Connected, Underground Utilities
- Cooling
- Central Air
- Heating
- Central
- Flood Zone
- X
- Parking
- Driveway, Garage Door Opener
Financial
- List Price
- $448,000
- Original Price
- $460,000
- Annual Taxes
- $6,790
- Tax Year
- 2025
- Listing Terms
- Cash, Conventional, FHA, VA Loan
- Special Conditions
- None
- Possession
- Close Of Escrow
Schools
- Elementary
- Waterford Elem
- Middle School
- Discovery Middle
- High School
- Timber Creek High