1 / 45
$249,000
Original: $259,000
Active
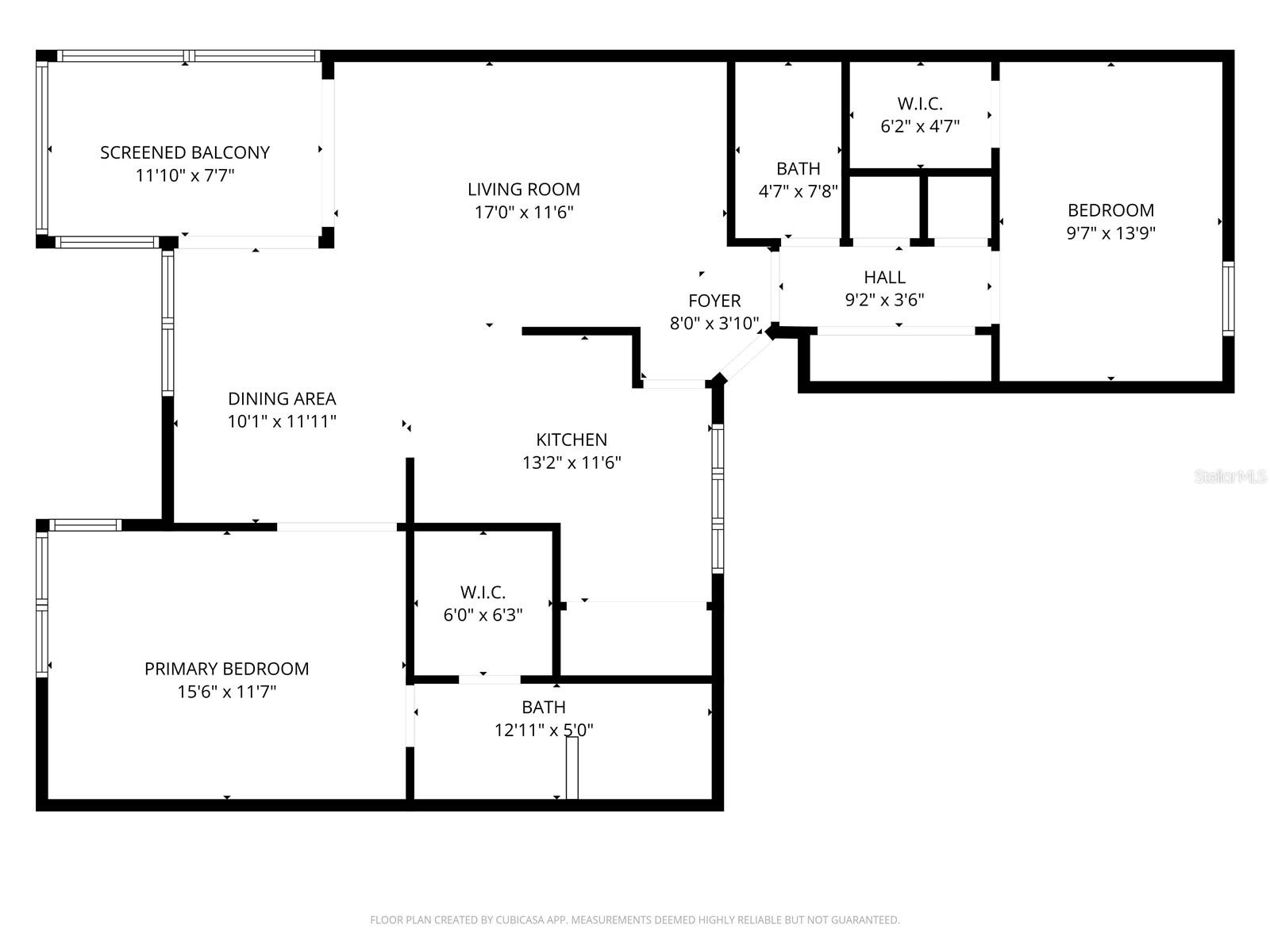
1362 STEARMAN COURT Unit 20
ORLANDO, FL 32825 — R/C WORLD CONDO
2 Beds
2 Baths
1,137 sqft
0.04 acres
Built 1985
About This Property
This beautiful 2-bedroom, 2-bath condo offers stylish, move-in-ready living in a prime East Orlando location. Situated on the 2nd floor with vaulted ceilings and no neighbors above, this light and bright unit features luxury vinyl plank flooring, updated lighting throughout, and an inviting open floor plan perfect for relaxing or entertaining. The refreshed kitchen shines with solid wood cabinetry, granite countertops, and stainless steel appliances. In this desirable split bedroom floor plan, bathrooms have been fully refreshed with matching solid wood cabinets, granite counters, and modern fixtures. The spacious primary suite boasts a double-door entry, walk-in closet, and a beautifully updated en suite with a sliding barn door, dual vanities, and a walk-in shower. Enjoy indoor-outdoor living on the screened balcony—an ideal spot for your morning coffee. Additional perks include washer & dryer, an assigned parking space, and a private exterior storage closet. The community offers fantastic amenities including a sparkling pool, two lighted tennis courts, a picnic pavilion, tot lot, and a fishing pond. ROOF 2022 and HVAC 2021. All of this just minutes from Valencia College East Campus, UCF, Waterford Lakes Town Center, abundant dining and entertainment options, Orlando International Airport, and easy access to 407, 417, and 528. Perfect as a primary residence or a smart rental investment—schedule your private showing today!
Property Details
Basics
- Property Type
- Residential
- Property Subtype
- Condominium
- MLS Number
- O6362939
- Days on Market
- 125
- Year Built
- 1985
- Levels
- One
- Floor Number
- 2
- Additional Rooms
- Inside Utility,Storage Rooms
- Direction Faces
- Southwest
- Occupant Type
- Vacant
Size & Structure
- Living Area
- 1,137 sqft
- Total Area
- 1,137 sqft
- Lot Size
- 0.04 acres
- Lot Sq Ft
- 1,628 sqft
- Bedrooms
- 2
- Full Baths
- 2
- Stories
- 2
Interior
- Flooring
- Luxury Vinyl
- Appliances
- Dishwasher, Microwave, Range, Refrigerator
- Interior Features
- Ceiling Fans(s), High Ceilings, Open Floorplan
- Laundry
- In Kitchen, Inside, Laundry Closet, Same Floor As Condo Unit
- Furnished
- Unfurnished
- A/C
- Central Air
- Heating
- Central
Exterior & Lot
- Exterior Features
- Sidewalk
- Construction
- Block, Stucco
- Roof
- Shingle
- Foundation
- Slab
- Patio/Porch
- Patio, Rear Porch, Screened
- Other Structures
- Storage
Water & Pool
Community & HOA
- HOA
- Yes
- HOA Fee
- $356/Monthly
- HOA Amenities
- Playground, Pool, Tennis Court(s)
- Community Features
- Playground, Pool, Sidewalks, Tennis Court(s)
- Pets Allowed
- Yes
- Homestead
- Yes
Utilities & Systems
- Water
- Public
- Sewer
- Public Sewer
- Utilities
- BB/HS Internet Available, Cable Available, Electricity Available
- Cooling
- Central Air
- Heating
- Central
- Flood Zone
- X
Financial
- List Price
- $249,000
- Original Price
- $259,000
- Annual Taxes
- $388
- Tax Year
- 2024
- Listing Terms
- Cash
- Special Conditions
- None
Schools
- Elementary
- Cypress Springs Elem
- Middle School
- Legacy Middle
- High School
- University High