1 / 57
$299,000
Original: $305,000
Active
13415 BLUE HERON BEACH DRIVE Unit 910
ORLANDO, FL 32821 — BLUE HERON BEACH RESIDENCE TOWER I
2 Beds
2 Baths
1,078 sqft
0.02 acres
Built 2006
1-Car Garage
About This Property
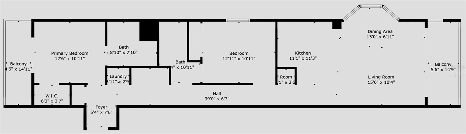
Welcome to your private retreat at 9th-floor corner unit at the iconic Blue Heron Beach Resort. This beautiful 2-bedroom, 2-bath condominium offers stunning views of Lake Bryan and the surrounding Orlando attractions. This condo features an open-concept layout with a spacious living area that opens onto a large, private balcony, the perfect spot to enjoy breathtaking sunsets and nightly Disney fireworks. The kitchen is fully equipped with granite countertops, modern appliances, and ample cabinet space, seamlessly connecting to the dining and living areas for effortless entertaining. The primary suite includes direct balcony access, an ensuite bath with a jetted tub, and a large walk-in closet. The second bedroom is equally comfortable, ideal for guests or family. This property can be used as your a vacation getaway, or a short-term rental investment offering excellent income potential and a prime location just minutes from Disney Springs, major theme parks, and world-class dining and shopping. Blue Heron Beach Resort provides exceptional amenities including two resort-style pools, a hot tub, tiki bar, fitness center, and boardwalk access to Lake Bryan for fishing and water sports. Enjoy the Florida lifestyle with convenience and spectacular views all in one! Schedule your private showing today and experience a resort lifestyle that make this property truly one of a kind.
Property Details
Basics
- Property Type
- Residential
- Property Subtype
- Condo - Hotel
- MLS Number
- O6353865
- Days on Market
- 126
- Year Built
- 2006
- Levels
- One
- Floor Number
- 9
- Direction Faces
- Northwest
- Occupant Type
- Vacant
Size & Structure
- Living Area
- 1,078 sqft
- Total Area
- 1,078 sqft
- Lot Size
- 0.02 acres
- Lot Sq Ft
- 1,078 sqft
- Bedrooms
- 2
- Full Baths
- 2
- Garage Spaces
- 1
- Stories
- 17
Interior
- Flooring
- Carpet, Tile
- Appliances
- Dishwasher, Dryer, Microwave, Refrigerator, Washer
- Interior Features
- Ceiling Fans(s), Living Room/Dining Room Combo, Thermostat
- Laundry
- Laundry Closet
- Furnished
- Furnished
- A/C
- Central Air
- Heating
- Central
Exterior & Lot
- Exterior Features
- Balcony, Sliding Doors
- Construction
- Concrete
- Roof
- Metal
- Foundation
- Concrete Perimeter
- Patio/Porch
- Covered
- Lot Features
- City Limits
- View
- City, Pool, Water
Water & Pool
- Waterfront
- Yes — Lake Front
- Water Body
- LAKE BRYAN
- Water View
- Lake
Community & HOA
- HOA
- Yes
- HOA Fee
- $990/Monthly
- HOA Amenities
- Cable TV, Elevator(s), Pool, Storage
- Community Features
- Clubhouse, Deed Restrictions, Fitness Center
- Pets Allowed
- Cats OK, Dogs OK
- Security
- Key Card Entry, Smoke Detector(s)
Utilities & Systems
- Water
- Public
- Sewer
- Public Sewer
- Utilities
- Cable Connected, Water Connected
- Cooling
- Central Air
- Heating
- Central
- Flood Zone
- X
- Parking
- Circular Driveway, Covered, Guest, Open
Financial
- List Price
- $299,000
- Original Price
- $305,000
- Annual Taxes
- $3,810
- Tax Year
- 2025
- Listing Terms
- Cash, Conventional
- Special Conditions
- None
Schools
- Elementary
- Bay Lake Elementary
- Middle School
- Freedom Middle
- High School
- Lake Buena Vista High School