1 / 3
$674,000
Active
12919 WESTHAVEN OAK DRIVE
WINTER GARDEN, FL 34787 — WESTHAVEN AT OVATION
4 Beds
4 Baths
2,508 sqft
0.10 acres
Built 2024
2-Car Garage
About This Property
Under Construction. Toll Brothers New Construction in Horizon West – Winter Garden | Estimated Completion Summer 2026
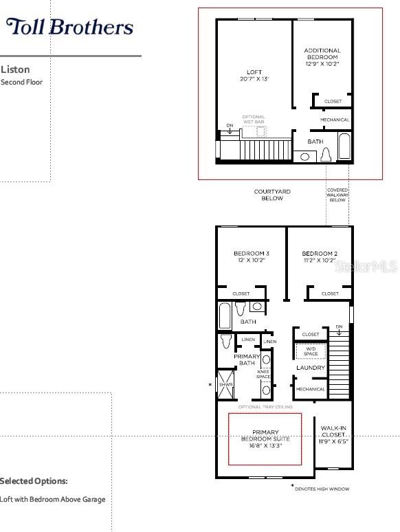
Bungalow featuring a private in-law suite above a detached 2-car garage. A charming covered entry welcomes you into an open and expansive floor plan with seamless flow between the great room, kitchen, and dining area — ideal for both everyday living and entertaining.
Enjoy outdoor Florida living with a covered lanai and a spacious private courtyard offering direct access to the detached garage and guest suite. The primary bedroom retreat includes a generous walk-in closet and a well-appointed bath with dual vanities, separate shower, and private water closet.
Located in the highly sought-after Horizon West community, this thoughtfully designed home combines elegance, functionality, and flexible living space. Schedule your showing today.
Bungalow featuring a private in-law suite above a detached 2-car garage. A charming covered entry welcomes you into an open and expansive floor plan with seamless flow between the great room, kitchen, and dining area — ideal for both everyday living and entertaining.
Enjoy outdoor Florida living with a covered lanai and a spacious private courtyard offering direct access to the detached garage and guest suite. The primary bedroom retreat includes a generous walk-in closet and a well-appointed bath with dual vanities, separate shower, and private water closet.
Located in the highly sought-after Horizon West community, this thoughtfully designed home combines elegance, functionality, and flexible living space. Schedule your showing today.
Property Details
Basics
- Property Type
- Residential
- Property Subtype
- Single Family Residence
- MLS Number
- O6381746
- Days on Market
- 1
- Year Built
- 2024
- New Construction
- Yes
- Levels
- Two
- Additional Rooms
- Interior In-Law Suite w/No Private Entry
- Direction Faces
- West
- Occupant Type
- Owner
Size & Structure
- Living Area
- 2,508 sqft
- Total Area
- 2,708 sqft
- Lot Size
- 0.10 acres
- Lot Sq Ft
- 3,680 sqft
- Bedrooms
- 4
- Full Baths
- 3
- Half Baths
- 1
- Garage Spaces
- 2
Interior
- Flooring
- Carpet, Tile
- Appliances
- Built-In Oven, Cooktop, Dishwasher, Disposal, Microwave
- Interior Features
- High Ceilings, Kitchen/Family Room Combo, Open Floorplan, PrimaryBedroom Upstairs, Split Bedroom
- Laundry
- Laundry Room
- Furnished
- Unfurnished
- A/C
- Central Air, Zoned
- Heating
- Electric, Heat Pump, Natural Gas
Exterior & Lot
- Exterior Features
- Sidewalk, Sliding Doors, Sprinkler Metered
- Construction
- Block, Cement Siding, Stucco, Frame
- Roof
- Shingle
- Foundation
- Slab
- Patio/Porch
- Covered, Front Porch, Rear Porch
- Lot Features
- Corner Lot, In County
- View
- Water
Water & Pool
- Water View
- Pond
Community & HOA
- HOA
- Yes
- HOA Fee
- $231/Quarterly
- HOA Amenities
- Clubhouse
- Community Features
- Clubhouse, Park, Playground, Pool, Sidewalks
- Pets Allowed
- Yes
Utilities & Systems
- Water
- Public
- Sewer
- Public Sewer
- Utilities
- Cable Available, Electricity Available, Electricity Connected, Natural Gas Available, Natural Gas Connected, Sprinkler Meter, Sprinkler Recycled, Underground Utilities, Water Available, Water Connected
- Cooling
- Central Air, Zoned
- Heating
- Electric, Heat Pump, Natural Gas
- Flood Zone
- x
- Parking
- Alley Access
Financial
- List Price
- $674,000
- Annual Taxes
- $2,326
- Tax Year
- 2025
- Listing Terms
- Cash, Conventional, FHA, VA Loan
- Special Conditions
- None
Schools
- Elementary
- Water Spring Elementary
- Middle School
- Water Spring Middle
- High School
- Horizon High School