1 / 4
$6,700,000
Active
11 MAIN STREET
WINDERMERE, FL 34786 — DAVIS SHORES
5 Beds
5 Baths
4,723 sqft
0.41 acres
Built 2026
2-Car Garage
About This Property
Under Construction. Brand New Construction in the Heart of Downtown Windermere – Currently Under Construction!
Walking distance to downtown events, the farmers market, food trucks, and the local brewery. Historic Windermere is golf cart friendly and known for its outdoor lifestyle with parks, recreation areas, tennis courts, public docks, and swimming areas.
Bring your boat! This waterfront homesite sits on Fischer Canal with access to the 13 lakes of the spring-fed Butler Chain of Lakes. A new seawall and dock provide space for your boat and jet ski — and no HOA fees!
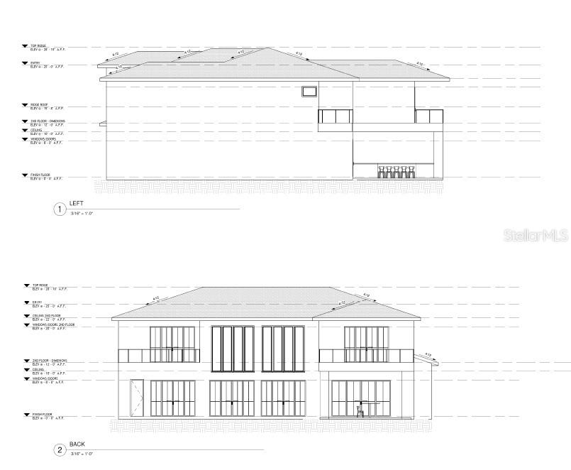
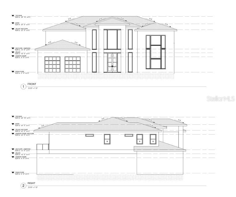
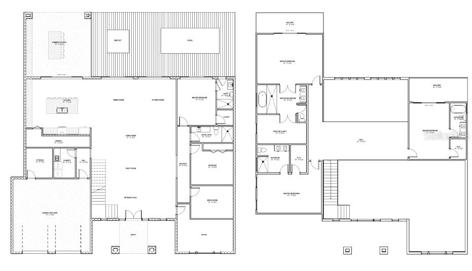
This custom home is currently under construction with an expected completion date of late Summer 2026. The thoughtfully designed two-story residence will offer approximately 4,700 square feet, featuring expansive open living spaces, soaring ceilings, and a modern architectural design. The floor plan includes a spacious great room, designer kitchen, and seamless indoor-outdoor living opening to the lanai and pool area overlooking the canal.
The layout features a luxurious first-floor primary suite, additional bedrooms and loft space upstairs, private balcony areas, and a two-car garage, creating a perfect blend of comfort, style, and waterfront living in one of Central Florida’s most sought-after lakefront communities.
Walking distance to downtown events, the farmers market, food trucks, and the local brewery. Historic Windermere is golf cart friendly and known for its outdoor lifestyle with parks, recreation areas, tennis courts, public docks, and swimming areas.
Bring your boat! This waterfront homesite sits on Fischer Canal with access to the 13 lakes of the spring-fed Butler Chain of Lakes. A new seawall and dock provide space for your boat and jet ski — and no HOA fees!
This custom home is currently under construction with an expected completion date of late Summer 2026. The thoughtfully designed two-story residence will offer approximately 4,700 square feet, featuring expansive open living spaces, soaring ceilings, and a modern architectural design. The floor plan includes a spacious great room, designer kitchen, and seamless indoor-outdoor living opening to the lanai and pool area overlooking the canal.
The layout features a luxurious first-floor primary suite, additional bedrooms and loft space upstairs, private balcony areas, and a two-car garage, creating a perfect blend of comfort, style, and waterfront living in one of Central Florida’s most sought-after lakefront communities.
Property Details
Basics
- Property Type
- Residential
- Property Subtype
- Single Family Residence
- MLS Number
- O6387596
- Days on Market
- 1
- Year Built
- 2026
- New Construction
- Yes
- Levels
- Two
- Direction Faces
- West
- Occupant Type
- Vacant
Size & Structure
- Living Area
- 4,723 sqft
- Total Area
- 6,114 sqft
- Lot Size
- 0.41 acres
- Lot Sq Ft
- 17,843 sqft
- Bedrooms
- 5
- Full Baths
- 5
- Garage Spaces
- 2
- Stories
- 2
Interior
- Flooring
- Other
- Appliances
- Other
- Interior Features
- Other
- Laundry
- Laundry Room
- Furnished
- Unfurnished
- A/C
- Central Air
- Heating
- Electric
Exterior & Lot
- Exterior Features
- Other
- Construction
- Block, Stucco
- Roof
- Shingle
- Foundation
- Slab
- Lot Features
- City Limits, Landscaped, Paved
- View
- Water
Water & Pool
- Waterfront
- Yes — Canal - Freshwater
- Water View
- Lake
- Dock
- Yes — Dock - Open
Community & HOA
- HOA
- No
- Pets Allowed
- Yes
Utilities & Systems
- Water
- Public
- Sewer
- Septic Tank
- Utilities
- Electricity Available, Sewer Available, Water Available
- Cooling
- Central Air
- Heating
- Electric
- Flood Zone
- X
- Parking
- Driveway, Garage Door Opener, Ground Level
Financial
- List Price
- $6,700,000
- Annual Taxes
- $8,194
- Tax Year
- 2025
- Listing Terms
- Cash, Conventional, FHA, Other, VA Loan
- Special Conditions
- None
- Possession
- Close Of Escrow
Schools
- Elementary
- Windermere Elem
- Middle School
- Gotha Middle
- High School
- Olympia High