1 / 13
$675,000
Original: $708,000
Active
1058 GLORYLAND COURT
SANFORD, FL 32771 — RIVERSIDE OAKS
4 Beds
3 Baths
2,625 sqft
0.16 acres
Built 2026
3-Car Garage
About This Property
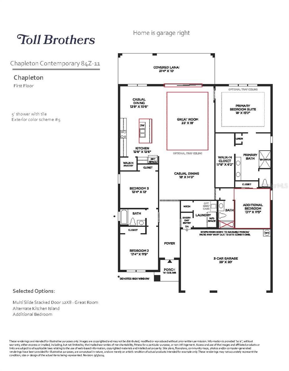
Under Construction. This beautifully designed 2,625 square foot open concept home offers 4 bedrooms and 3 full baths, thoughtfully crafted for both everyday comfort and upscale living. The spacious layout features an elegant tray ceiling in the Great Room that add architectural depth and sophistication.
At the heart of the home, the gourmet kitchen is ideal for entertaining, seamlessly connecting to the great room adorned by a large tray ceiling. The optional fourth bedroom includes a private en-suite bath with upgraded shower, making it perfect for guests or multigenerational living.
The primary bath delivers a true retreat experience with an oversized walk-in closet provides exceptional storage.
Located in a boat ramp community that leads to Lake Monroe and the St. Johns River waterways, this home offers the rare convenience of golf-cart access to historic downtown Sanford, blending luxury living with an active lifestyle.
At the heart of the home, the gourmet kitchen is ideal for entertaining, seamlessly connecting to the great room adorned by a large tray ceiling. The optional fourth bedroom includes a private en-suite bath with upgraded shower, making it perfect for guests or multigenerational living.
The primary bath delivers a true retreat experience with an oversized walk-in closet provides exceptional storage.
Located in a boat ramp community that leads to Lake Monroe and the St. Johns River waterways, this home offers the rare convenience of golf-cart access to historic downtown Sanford, blending luxury living with an active lifestyle.
Property Details
Basics
- Property Type
- Residential
- Property Subtype
- Single Family Residence
- MLS Number
- O6384587
- Days on Market
- 46
- Year Built
- 2026
- New Construction
- Yes
- Levels
- One
- Direction Faces
- East
- Occupant Type
- Vacant
Size & Structure
- Living Area
- 2,625 sqft
- Total Area
- 3,606 sqft
- Lot Size
- 0.16 acres
- Lot Sq Ft
- 7,200 sqft
- Bedrooms
- 4
- Full Baths
- 3
- Garage Spaces
- 3
Interior
- Flooring
- Other
- Appliances
- Built-In Oven, Cooktop, Dishwasher, Disposal, Microwave
- Interior Features
- High Ceilings, In Wall Pest System, Kitchen/Family Room Combo, Living Room/Dining Room Combo, Open Floorplan, Primary Bedroom Main Floor, Thermostat, Tray Ceiling(s)
- Laundry
- Electric Dryer Hookup, Inside, Laundry Room
- Furnished
- Unfurnished
- A/C
- Central Air
- Heating
- Central
Exterior & Lot
- Exterior Features
- Lighting, Sidewalk, Sliding Doors, Sprinkler Metered
- Construction
- Block
- Roof
- Shingle
- Foundation
- Slab
Water & Pool
Community & HOA
- HOA
- Yes
- HOA Fee
- $431/Quarterly
- HOA Amenities
- Gated, Pool
- Community Features
- Gated Community - No Guard, Pool, Sidewalks, Street Lights
- Pets Allowed
- Yes
Utilities & Systems
- Water
- Public
- Sewer
- Public Sewer
- Utilities
- BB/HS Internet Available, Cable Available, Electricity Connected, Sewer Connected, Sprinkler Recycled, Underground Utilities, Water Connected
- Cooling
- Central Air
- Heating
- Central
- Flood Zone
- X
Financial
- List Price
- $675,000
- Original Price
- $708,000
- Annual Taxes
- $9,912
- Tax Year
- 2026
- Listing Terms
- Cash, Conventional, FHA, VA Loan
- Special Conditions
- None
Schools
- Elementary
- Midway Elementary
- Middle School
- Millennium Middle
- High School
- Seminole High