1 / 62
$510,000
Original: $525,000
Active
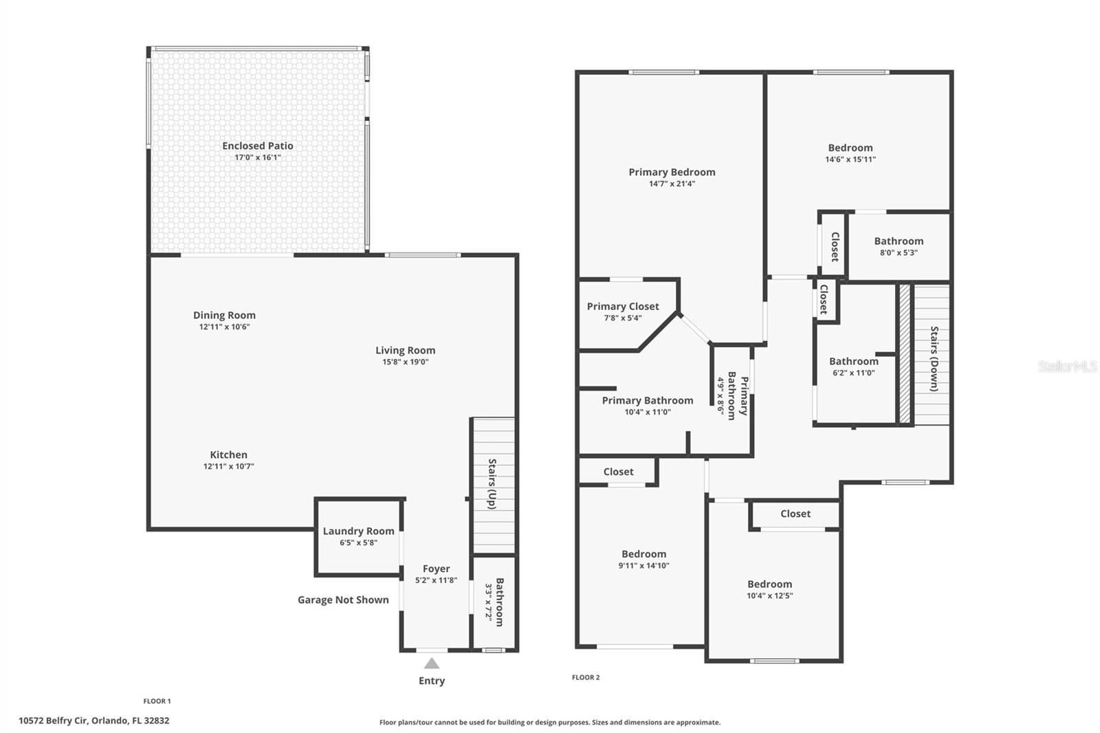
10572 BELFRY CIRCLE
ORLANDO, FL 32832 — EAGLE CRK PH 1C-VLG E
4 Beds
4 Baths
2,219 sqft
0.07 acres
Built 2014
2-Car Garage
About This Property
**PRICE REDUCED FROM $525,000 to $510,000! MOTIVATED SELLERS—don’t miss this opportunity!** TURNKEY! EXCEPTIONAL VALUE! Welcome to the epitome of maintenance-free luxury in the heart of Lake Nona! Situated in the peaceful, gated enclave of Curzon Place within the highly sought-after 24-hour guard-gated Eagle Creek Golf Community, this IMPECCABLY renovated townhome offers a perfect blend of style and serenity. Step into a lifestyle of relaxation in this sun-kissed, spacious, and inviting retreat with breathtaking views of the immaculate fairway! ALL NEW MAJOR COMPONENTS!! Upgrades include NEW HVAC (2020), serviced twice a year, NEW Hot Water Heater (2025), WaterSoftener (2021), NEW WI-FI operated Lift Master overhead dual garage openers (2025), epoxy garage floor (2021), enlarged brick-paved lanai screened in with a HARD COVER ROOF and ceiling fan (2021), NEW attic 12 inch insulation (2025), pavers in driveway and lanai SEALED (2025), whole home interior painting, upgraded shower fixtures, timer switches, 2nd floor upgraded flooring, NEW ADT security system, Nest thermostat, wi-fi controlled exterior lights, and front door lock! MOVE-IN READY WITH A BONUS! This home includes a brand-new, stylish full-size bedroom set complete with matching dresser and nightstands, a 7-drawer dresser, a dining table with 4 chairs and a bench seat, and 4 bar stools! DESIGNER Window Treatments and Blinds are included! Curzon Place amenities include a private pool and spa, as well as a LOW-MAINTENANCE lifestyle with professionally managed grounds, exterior painting, exterior insurance, roof pressure washing, street cleaning, and tree trimming. Eagle Creek amenities include a 2-story, 14,000-square-foot clubhouse with a pro shop, lounge, and restaurant. Residents enjoy the lowest rates available at the 18-hole championship Eagle Creek Golf course! A second family recreation clubhouse contains a state-of-the-art fitness center, resort-style swimming pool, kid’s pool with splash zones, lighted tennis courts, basketball courts, and multiple gathering rooms. The surrounding grounds include lush preserve views, numerous walking and biking trails, a covered kid’s playground, and fun dog parks. Residents will enjoy its convenient central location to many local attractions, including the USTA Central Campus, Nona Adventure Park, Boxi Park, and multiple local parks. Medical City is home to two hospitals, soon to be a third, 24-hour emergency care and the Orlando VA Medical Center! Lake Nona Town Center, a regional shopping and entertainment destination, is home to great restaurants, hotels and a well-known weekend farmers market! World-class attractions like Disney World, Universal Studios, and SeaWorld are only a short drive away, and nearby Orlando International Airport is easily accessible. Schedule your private tour today!
Property Details
Basics
- Property Type
- Residential
- Property Subtype
- Townhouse
- MLS Number
- O6376509
- Days on Market
- 59
- Year Built
- 2014
- Levels
- Two
- Architectural Style
- Florida
- Direction Faces
- North
- Occupant Type
- Vacant
Size & Structure
- Living Area
- 2,219 sqft
- Total Area
- 2,677 sqft
- Lot Size
- 0.07 acres
- Lot Sq Ft
- 3,092 sqft
- Bedrooms
- 4
- Full Baths
- 3
- Half Baths
- 1
- Garage Spaces
- 2
Interior
- Flooring
- Ceramic Tile, Laminate
- Appliances
- Dishwasher, Disposal, Dryer, Electric Water Heater, Microwave, Range, Refrigerator, Washer, Water Softener
- Interior Features
- Ceiling Fans(s), Eat-in Kitchen, Kitchen/Family Room Combo, Open Floorplan, PrimaryBedroom Upstairs, Solid Surface Counters, Solid Wood Cabinets, Thermostat, Walk-In Closet(s), Window Treatments
- Laundry
- Electric Dryer Hookup, Inside, Laundry Room, Washer Hookup
- Windows
- Aluminum Frames, Blinds, Double Pane Windows, Rods, Window Treatments
- Furnished
- Partially
- A/C
- Central Air, Humidity Control
- Heating
- Central, Electric
Exterior & Lot
- Exterior Features
- Balcony, Lighting, Private Mailbox, Rain Gutters, Sidewalk, Sliding Doors
- Construction
- Block, Stone
- Roof
- Tile
- Foundation
- Slab
- Patio/Porch
- Covered, Patio, Screened
- View
- Golf Course, Trees/Woods
Water & Pool
Community & HOA
- HOA
- Yes
- HOA Fee
- $1,979/Quarterly
- HOA Amenities
- Basketball Court, Clubhouse, Fitness Center, Gated, Golf Course, Maintenance, Park, Playground, Pool, Recreation Facilities, Spa/Hot Tub, Tennis Court(s), Trail(s)
- Community Features
- Association Recreation - Owned, Clubhouse, Deed Restrictions, Dog Park, Fitness Center, Gated Community - Guard, Golf Carts OK, Golf, Irrigation-Reclaimed Water, No Truck/RV/Motorcycle Parking, Park, Playground, Pool, Restaurant, Sidewalks, Tennis Court(s), Street Lights
- Pets Allowed
- Cats OK, Dogs OK
- Homestead
- Yes
- Security
- Gated Community, Security Gate, Security System, Security System Owned, Smoke Detector(s), Touchless Entry
Utilities & Systems
- Water
- None
- Sewer
- Public Sewer
- Utilities
- BB/HS Internet Available, Electricity Connected, Fire Hydrant, Public, Sewer Connected, Sprinkler Recycled, Underground Utilities, Water Connected
- Cooling
- Central Air, Humidity Control
- Heating
- Central, Electric
- Flood Zone
- X
- Parking
- Driveway, Garage Door Opener, Guest, Garage
Financial
- List Price
- $510,000
- Original Price
- $525,000
- Annual Taxes
- $6,870
- Tax Year
- 2024
- Listing Terms
- Cash, Conventional
- Special Conditions
- None
Schools
- Elementary
- Eagle Creek Elementary
- Middle School
- Lake Nona Middle School
- High School
- Lake Nona High