1 / 48
$700,000
Original: $725,000
Active
1040 NASH DRIVE
CELEBRATION, FL 34747 — CELEBRATION ROSEVILLE
3 Beds
2 Baths
1,416 sqft
0.07 acres
Built 2001
2-Car Garage
About This Property
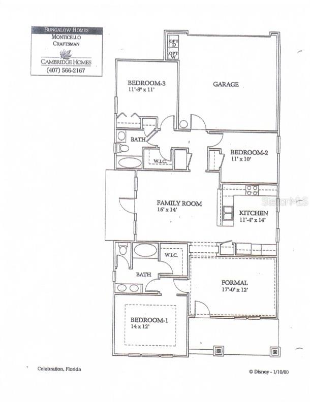
Nestled in Celebration’s Roseville Corner, this highly sought-after ONE-STORY Monticello Floor Plan features 3 Bedrooms, two full bathrooms and a two-car attached garage. It is located just blocks from the popular East Village Pool and Playground. This home offers a versatile split floor plan, with the Primary Bedroom ensuite in the front featuring a tray ceiling and beautifully upgraded bathroom. Two additional spacious bedrooms and a shared bath are located in the rear of the home. Both bathrooms feature marble flooring with heated floors for added comfort. Fresh interior paint enhances the home, along with recent exterior paint (approximately two years ago) contributing to its well-maintained appearance. The kitchen features stylish and functional upgrades, along with a newer appliance package including washer, dryer, stove, refrigerator, and microwave. There is an additional flexible living area separate from the main space, ideal for use as a dining room, sitting room, or home office. The main living/gathering room is open to the kitchen and includes a door leading to a cozy side porch, perfect for relaxing or grilling with family and friends. Beautiful hardwood floors flow throughout the home (even in the closets). The garage has been enhanced with durable epoxy flooring, and the recent roof and AC add to this energy-efficient and easy-to-maintain home. Enjoy the many walking and biking trails throughout the community. Downtown Celebration offers restaurants, banks, salons, and shops. Lakeside Park features a splash pad, along with tennis and basketball courts. Welcome home!
Property Details
Basics
- Property Type
- Residential
- Property Subtype
- Single Family Residence
- MLS Number
- S5146173
- Days on Market
- 12
- Year Built
- 2001
- Levels
- One
- Architectural Style
- Bungalow
- Additional Rooms
- Formal Living Room Separate,Inside Utility
- Direction Faces
- Southeast
- Occupant Type
- Tenant
Size & Structure
- Living Area
- 1,416 sqft
- Total Area
- 1,953 sqft
- Lot Size
- 0.07 acres
- Lot Sq Ft
- 3,223 sqft
- Bedrooms
- 3
- Full Baths
- 2
- Garage Spaces
- 2
- Stories
- 1
Interior
- Flooring
- Ceramic Tile, Wood
- Appliances
- Dishwasher, Disposal, Dryer, Microwave, Range, Refrigerator, Washer
- Interior Features
- Crown Molding, Primary Bedroom Main Floor, Walk-In Closet(s)
- Laundry
- In Garage
- Windows
- Blinds
- Furnished
- Unfurnished
- A/C
- Central Air
- Heating
- Central
Exterior & Lot
- Exterior Features
- Sidewalk
- Construction
- Cement Siding
- Roof
- Shingle
- Foundation
- Slab
- Lot Features
- In County, Paved, Unincorporated
Water & Pool
Community & HOA
- HOA
- Yes
- HOA Fee
- $446/Quarterly
- Community Features
- Association Recreation - Owned, Clubhouse, Deed Restrictions, Fitness Center, Park, Playground, Pool, Sidewalks, Tennis Court(s), Street Lights
- Pets Allowed
- Breed Restrictions, Yes
- CDD
- Yes
Utilities & Systems
- Water
- Public
- Sewer
- Public Sewer
- Utilities
- Cable Available, Electricity Available, Sewer Connected, Underground Utilities, Water Connected
- Cooling
- Central Air
- Heating
- Central
- Flood Zone
- X
- Parking
- Alley Access
Financial
- List Price
- $700,000
- Original Price
- $725,000
- Annual Taxes
- $7,450
- Tax Year
- 2025
- Listing Terms
- Cash
- Special Conditions
- None
- Possession
- Close Of Escrow
Schools
- Elementary
- Celebration K-8
- Middle School
- Celebration K-8
- High School
- Celebration High