1 / 43
$383,000
Original: $395,000
Active
102 N SILVER CLUSTER COURT
LONGWOOD, FL 32750 — LAKE SEARCY SHORES
3 Beds
2 Baths
1,166 sqft
0.23 acres
Built 1975
2-Car Garage
About This Property
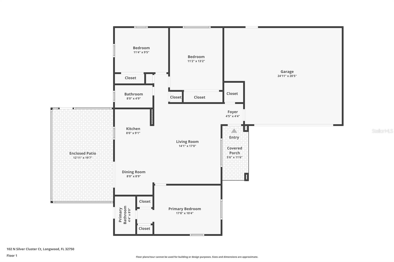
Welcome to 102 Silver Cluster Ct N in Longwood, a beautifully maintained pool home under $400K offering comfort, value, and an unbeatable opportunity for first-time buyers or anyone looking for a great starter home in a desirable Seminole County location. Tucked away on a quiet dead-end street with no through traffic, this home provides both privacy and peace of mind.
This solid concrete block home features a functional split floor plan with bright, open living spaces filled with natural light. The interior flows seamlessly, with French doors leading out to a screened-in patio that overlooks your private pool — perfect for relaxing weekends, entertaining friends, or enjoying Florida living year-round.
The kitchen is updated with white shaker cabinets and offers a clean, modern feel, while the home’s layout makes everyday living easy and comfortable. Step outside to a fully fenced, oversized backyard complete with an irrigation system, providing plenty of space for pets, play, gardening, or future outdoor enhancements.
Major updates include a new roof (2023), double-pane windows, and an HVAC system (2017), offering confidence and efficiency for years to come. The screened patio and pool area create a true backyard retreat, making this Longwood home absolutely stand out at this price point.
Located in the heart of Longwood, you’re just minutes from Historic Downtown Longwood, Reiter Park, and the SunRail station, along with easy access to shopping, dining, and major roadways. Outdoor enthusiasts will enjoy nearby parks, trails, and recreational areas, while the home’s central location makes commuting throughout Central Florida simple and convenient.
With its affordable price, thoughtful updates, private setting, and inviting pool, 102 Silver Cluster Ct N is a rare find and the perfect place to start your next chapter.
This solid concrete block home features a functional split floor plan with bright, open living spaces filled with natural light. The interior flows seamlessly, with French doors leading out to a screened-in patio that overlooks your private pool — perfect for relaxing weekends, entertaining friends, or enjoying Florida living year-round.
The kitchen is updated with white shaker cabinets and offers a clean, modern feel, while the home’s layout makes everyday living easy and comfortable. Step outside to a fully fenced, oversized backyard complete with an irrigation system, providing plenty of space for pets, play, gardening, or future outdoor enhancements.
Major updates include a new roof (2023), double-pane windows, and an HVAC system (2017), offering confidence and efficiency for years to come. The screened patio and pool area create a true backyard retreat, making this Longwood home absolutely stand out at this price point.
Located in the heart of Longwood, you’re just minutes from Historic Downtown Longwood, Reiter Park, and the SunRail station, along with easy access to shopping, dining, and major roadways. Outdoor enthusiasts will enjoy nearby parks, trails, and recreational areas, while the home’s central location makes commuting throughout Central Florida simple and convenient.
With its affordable price, thoughtful updates, private setting, and inviting pool, 102 Silver Cluster Ct N is a rare find and the perfect place to start your next chapter.
Property Details
Basics
- Property Type
- Residential
- Property Subtype
- Single Family Residence
- MLS Number
- O6399945
- Days on Market
- 26
- Year Built
- 1975
- Levels
- One
- Direction Faces
- East
- Occupant Type
- Owner
Size & Structure
- Living Area
- 1,166 sqft
- Total Area
- 1,709 sqft
- Lot Size
- 0.23 acres
- Lot Sq Ft
- 9,750 sqft
- Bedrooms
- 3
- Full Baths
- 2
- Garage Spaces
- 2
- Stories
- 1
Interior
- Flooring
- Ceramic Tile, Laminate
- Appliances
- Dishwasher, Disposal, Microwave, Range, Range Hood, Refrigerator
- Interior Features
- Ceiling Fans(s), Eat-in Kitchen, Solid Wood Cabinets, Split Bedroom, Stone Counters
- Laundry
- In Garage
- Furnished
- Unfurnished
- A/C
- Central Air
- Heating
- Central, Electric
Exterior & Lot
- Exterior Features
- Rain Gutters, Sidewalk, Sliding Doors, Sprinkler Metered
- Construction
- Block
- Roof
- Shingle
- Foundation
- Slab
- Patio/Porch
- Covered, Rear Porch, Screened
Water & Pool
- Pool
- Yes — In Ground
Community & HOA
- HOA
- No
- Homestead
- Yes
Utilities & Systems
- Water
- Public
- Sewer
- Public Sewer
- Utilities
- Cable Connected, Electricity Connected, Public, Sprinkler Meter
- Cooling
- Central Air
- Heating
- Central, Electric
- Flood Zone
- X
- Parking
- Driveway, Garage Faces Side
Financial
- List Price
- $383,000
- Original Price
- $395,000
- Annual Taxes
- $4,071
- Tax Year
- 2024
- Listing Terms
- Cash, Conventional, FHA, VA Loan
- Special Conditions
- None
Schools
- Elementary
- Longwood Elementary
- Middle School
- Greenwood Lakes Middle
- High School
- Lyman High