1 / 39
$899,900
Original: $945,925
Active
10173 GOBAT ALLEY
ORLANDO, FL 32827 — LAUREATE PARK
4 Beds
4 Baths
2,645 sqft
0.14 acres
Built 2025
2-Car Garage
About This Property
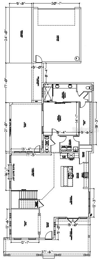
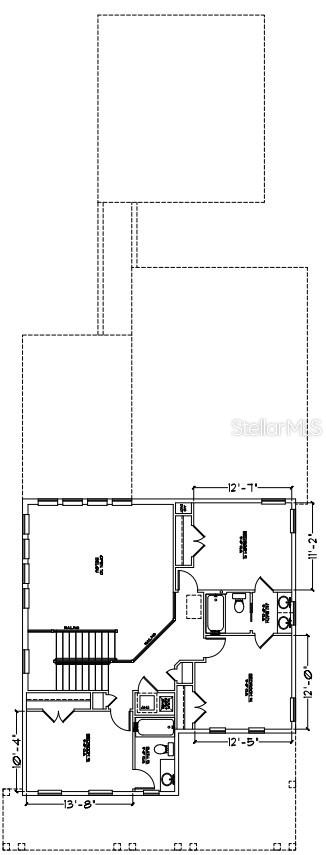
CONSTRUCTION COMPLETE! Welcome to The Kauai, where bold design meets everyday livability in the heart of Lake Nona’s Laureate Park. This 2,645 sq ft showstopper is packed with personality and purpose. From the moment you step onto the GENEROUS FRONT PORCH overlooking lush community park space, you’ll feel right at home. The SOARING 20’ CEILINGS and open-concept layout set the stage for stylish, sun-soaked living. The FIRST-FLOOR PRIMARY SUITE offers the privacy you crave with a spa-inspired bath featuring dual vanities and a walk-in shower. Need a quiet corner to work or create? A flexible front room is ready to become your dream home office, den, or hobby space. At the heart of the home, the chef’s kitchen stuns with WATERFALL QUARTZ COUNTERTOPS, ceiling-height SOFT-CLOSE CABINETRY, GE Profile stainless steel appliances, and a massive island perfect for everything from meal prep to late-night snacks. A walk-in pantry keeps things tidy, while the seamless flow to the living and dining areas makes hosting a breeze. Upstairs, roomy secondary bedrooms offer comfort for family or guests, and outside, a covered lanai is practically begging for evening cocktails and Florida sunsets. All of this is tucked into Laureate Park, Lake Nona’s most sought-after community complete with a resort-style aquatic center, tennis courts, walking trails, and gigabit internet. Just minutes from top-rated schools, medical campuses, dining, fitness centers, and tech hubs, you’ll be living at the center of it all.
Property Details
Basics
- Property Type
- Residential
- Property Subtype
- Single Family Residence
- MLS Number
- O6358112
- Days on Market
- 143
- Year Built
- 2025
- New Construction
- Yes
- Levels
- Two
- Direction Faces
- East
- Occupant Type
- Vacant
Size & Structure
- Living Area
- 2,645 sqft
- Total Area
- 3,906 sqft
- Lot Size
- 0.14 acres
- Lot Sq Ft
- 6,009 sqft
- Bedrooms
- 4
- Full Baths
- 3
- Half Baths
- 1
- Garage Spaces
- 2
Interior
- Flooring
- Luxury Vinyl, Tile
- Appliances
- Built-In Oven, Cooktop, Dishwasher, Disposal, Electric Water Heater, Exhaust Fan, Microwave
- Interior Features
- Crown Molding, Open Floorplan, Primary Bedroom Main Floor
- Laundry
- Inside, Laundry Room
- Fireplace
- Yes — Electric
- A/C
- Central Air
- Heating
- Central, Heat Pump
Exterior & Lot
- Exterior Features
- Sidewalk
- Construction
- Block, Cement Siding, Stucco
- Roof
- Shingle
- Foundation
- Slab
Water & Pool
Community & HOA
- HOA
- Yes
- HOA Fee
- $515/Quarterly
- Pets Allowed
- Yes
- CDD
- Yes
Utilities & Systems
- Water
- Public
- Sewer
- Public Sewer
- Utilities
- Cable Available, Electricity Connected, Sewer Connected, Water Connected
- Cooling
- Central Air
- Heating
- Central, Heat Pump
- Flood Zone
- X
Financial
- List Price
- $899,900
- Original Price
- $945,925
- Annual Taxes
- $4,060
- Tax Year
- 2024
- Special Conditions
- None