1 / 56
$999,990
Original: $1,199,900
Active
10007 LITTLE ALCOVE LOOP
WINTER GARDEN, FL 34787 — WATERLEIGH PH 2B
4 Beds
4 Baths
2,921 sqft
0.24 acres
Built 2018
3-Car Garage
About This Property
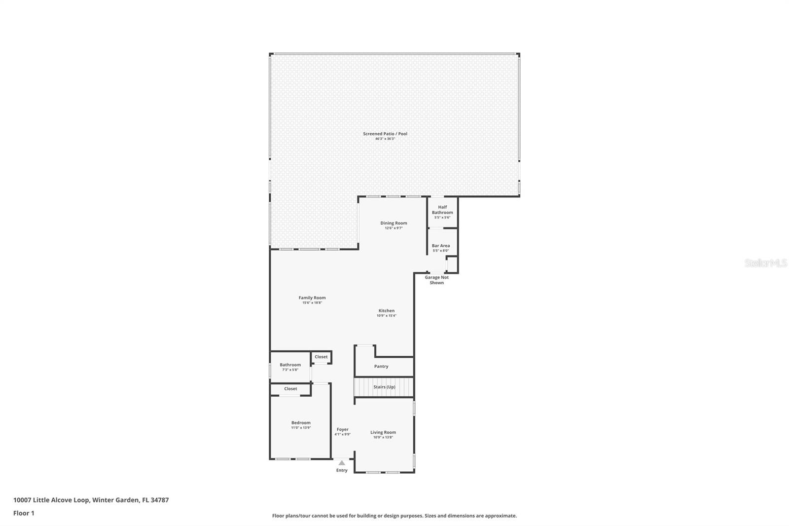
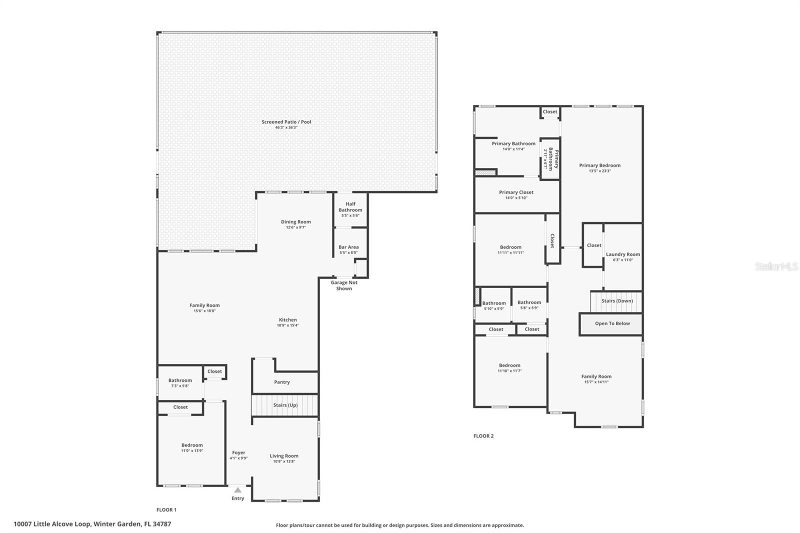
Stunning Emerald serie house, Selden model built in 2018 well maintained, featuring 4 bedrooms, 3.5 bathrooms, and approximately 2,920 sq ft of living space. Situated on a premium corner lot of about 10,585 sq ft, this home offers a 3-car tandem garage, spacious backyard, private wooded views, and a screen-enclosed private pool—perfect for year-round Florida living.
The open-concept design includes a formal dining room, elegant foyer with wrought-iron staircase, and a gourmet kitchen with a large island, 42” cabinets with crown molding, granite countertops, stainless steel appliances, and a convenient drop zone from the garage.
The owner’s suite boasts a tray ceiling, a spa-like en-suite bathroom with dual sinks, a garden tub, and a spacious walk-in closet. Additional features include a durable concrete tile roof, dual A/C units, and numerous upgrades: exterior lighting, sealed paver driveway and porch, landscape lighting, decorative stonework, epoxy-finished garage floor, and professional landscaping. Lawn care is included with HOA fee.
Located in the highly sought-after Waterleigh community in Winter Garden, residents enjoy resort-style amenities: two community clubhouses, 4 resort-style pools, 2 fitness center, beach volleyball, 2 tennis courts, mini-golf, community garden, dog park, fishing pier, and scenic walking/biking trails. The neighborhood is beautifully landscaped with lakes, green spaces, and planned community events.
Conveniently located just minutes from Historic Downtown Winter Garden, Winter Garden Village, and easy access to SR-429 for a quick commute to Orlando and Walt Disney World. Zoned for top-rated schools: Atwater bay Elementary, Water Spring Middle, and Horizon High School.
The open-concept design includes a formal dining room, elegant foyer with wrought-iron staircase, and a gourmet kitchen with a large island, 42” cabinets with crown molding, granite countertops, stainless steel appliances, and a convenient drop zone from the garage.
The owner’s suite boasts a tray ceiling, a spa-like en-suite bathroom with dual sinks, a garden tub, and a spacious walk-in closet. Additional features include a durable concrete tile roof, dual A/C units, and numerous upgrades: exterior lighting, sealed paver driveway and porch, landscape lighting, decorative stonework, epoxy-finished garage floor, and professional landscaping. Lawn care is included with HOA fee.
Located in the highly sought-after Waterleigh community in Winter Garden, residents enjoy resort-style amenities: two community clubhouses, 4 resort-style pools, 2 fitness center, beach volleyball, 2 tennis courts, mini-golf, community garden, dog park, fishing pier, and scenic walking/biking trails. The neighborhood is beautifully landscaped with lakes, green spaces, and planned community events.
Conveniently located just minutes from Historic Downtown Winter Garden, Winter Garden Village, and easy access to SR-429 for a quick commute to Orlando and Walt Disney World. Zoned for top-rated schools: Atwater bay Elementary, Water Spring Middle, and Horizon High School.
Property Details
Basics
- Property Type
- Residential
- Property Subtype
- Single Family Residence
- MLS Number
- S5132434
- Days on Market
- 234
- Year Built
- 2018
- Levels
- Two
- Additional Rooms
- Bonus Room,Breakfast Room Separate,Family Room,Formal Dining Room Separate,Inside Utility
- Direction Faces
- South
- Occupant Type
- Vacant
Size & Structure
- Living Area
- 2,921 sqft
- Total Area
- 3,974 sqft
- Lot Size
- 0.24 acres
- Lot Sq Ft
- 10,586 sqft
- Bedrooms
- 4
- Full Baths
- 3
- Half Baths
- 1
- Garage Spaces
- 3
Interior
- Flooring
- Carpet, Ceramic Tile
- Appliances
- Built-In Oven, Convection Oven, Cooktop, Dishwasher, Disposal, Dryer, Microwave, Refrigerator, Washer
- Interior Features
- Ceiling Fans(s), Kitchen/Family Room Combo, Open Floorplan, Solid Surface Counters, Solid Wood Cabinets, Walk-In Closet(s), Window Treatments
- Laundry
- Inside, Laundry Room, Upper Level
- Windows
- Blinds
- Furnished
- Unfurnished
- A/C
- Central Air
- Heating
- Central, Electric
Exterior & Lot
- Exterior Features
- Sidewalk, Sliding Doors, Sprinkler Metered
- Construction
- Block, Concrete, Stucco
- Roof
- Tile
- Foundation
- Slab
- Patio/Porch
- Covered, Front Porch, Patio, Screened
- Lot Features
- Corner Lot, Oversized Lot, Sidewalk, Paved
- View
- Park/Greenbelt
Water & Pool
- Pool
- Yes — Heated, In Ground, Lighting, Screen Enclosure
- Spa
- Yes — Heated, In Ground
Community & HOA
- HOA
- Yes
- HOA Fee
- $250/Monthly
- HOA Amenities
- Clubhouse, Fitness Center, Park, Playground, Pool
- Community Features
- Fitness Center, Park, Playground, Pool, Tennis Court(s), Street Lights
- Pets Allowed
- Yes
- Security
- Smoke Detector(s)
Utilities & Systems
- Water
- Public
- Sewer
- Public Sewer
- Utilities
- BB/HS Internet Available, Cable Available, Cable Connected, Electricity Connected, Sprinkler Meter
- Cooling
- Central Air
- Heating
- Central, Electric
- Flood Zone
- X
- Parking
- Tandem
Financial
- List Price
- $999,990
- Original Price
- $1,199,900
- Annual Taxes
- $6,381
- Tax Year
- 2024
- Listing Terms
- Cash, Conventional, FHA, VA Loan
- Special Conditions
- None
Schools
- Elementary
- Water Spring Elementary
- Middle School
- Water Spring Middle
- High School
- Horizon High School